010-84934479
扫码快速拨号 >
扫码快速拨号

160㎡四居轻奢风格万达天玺

发布时间: 2021年06月11日
小区:万达天玺 面积:160㎡ 户型:四居 风格:轻奢风格
设计说明

该小区位于西安市雁塔区木塔寺西路与科技七路交叉路口。业主是一家是三口的家庭,有一个孩子。是一对年轻夫妇业主,本设计方案采用现代轻奢风格,整体式用白色色调,餐厅酒柜搭配长方对坐餐桌使进餐变得有仪式感,合理大气的布局客厅使业主待客和家庭聚会变得方便,实用便捷是本方案想表达的核心思想。


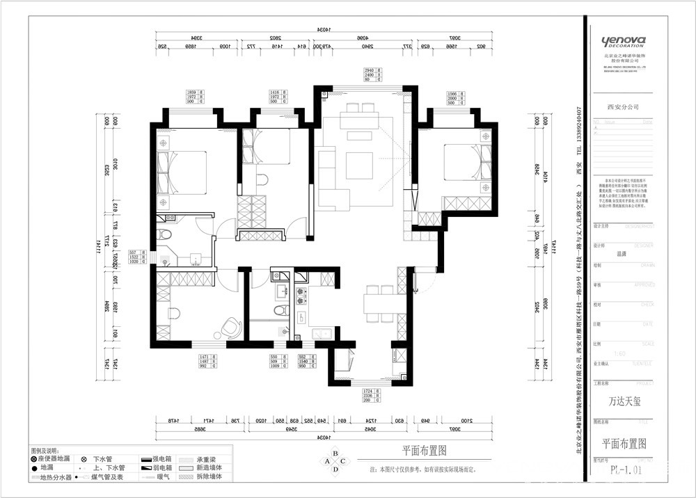
户型图
卧室
客厅
餐厅
本案设计师
业之峰专业设计师
我家装成这样多少钱?
相关案例推荐
报价计算器
免费量房
免费设计
回到顶部