160㎡四居现代简约风格万达天玺
发布时间:
2021年06月11日
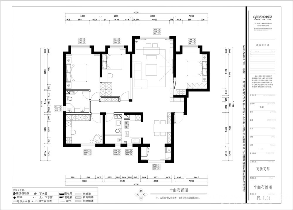
小区:万达天玺 面积:160㎡ 户型:四居 风格:现代简约风格
设计说明
该小区位于西安市雁塔区木塔寺西路与科技七路交叉路口。业主是一家是四口的家庭,有一个孩子。是一对夫妇业主,本设计方案采用现代简约风格,整体式用灰色色调,设计使本不大的房间整体显得大气舒适,布置了女儿房及客房,客房的存在使有亲朋好友来家里做客时有休息的地方,使用简单便捷是本方案想表达的核心思想。
户型图

餐厅

卧室



客厅




衣帽间





京公安网备11010502040911