155㎡三居现代简约风格融创中心
发布时间:
2021年02月24日
小区:融创中心 面积:155㎡ 户型:三居 风格:现代简约风格
设计说明
本方案是现代简约风格,在设计上更强调功能性,以自然舒适为设计的核心,简约而不简单为设计理念,整体空间的设计都使用简单柔和的线条,通过高级灰的装饰与家具呈现出一种高级有质感的居住空间。
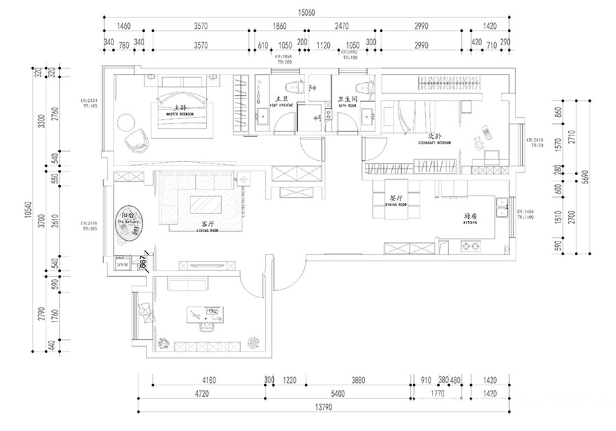
户型图

书房


客厅




玄关

卧室


餐厅





京公安网备11010502040911