155㎡三居现代简约风格融创中心
发布时间:
2021年02月24日
小区:融创中心 面积:155㎡ 户型:三居 风格:现代简约风格
设计说明
本方案为极简风格,遵循分璞归真,化繁为简的理念,去打造简单质朴的原生态空间。在设计上,大面积采用黑白灰色调,使用简单的线条,照明、材料等都简化去展现出纯粹的美。
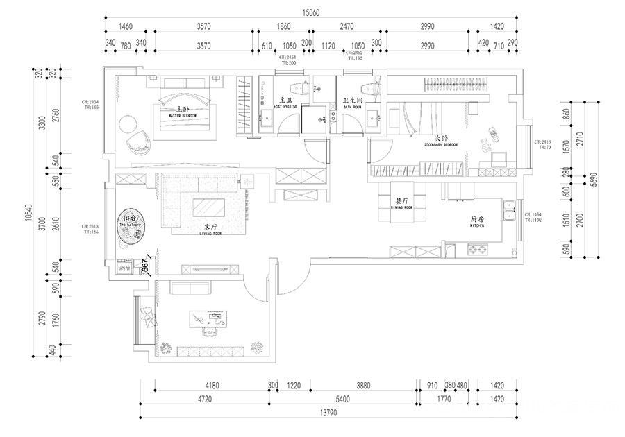
户型图

书房




客厅

卧室




休闲区
餐厅
玄关
本方案为极简风格,遵循分璞归真,化繁为简的理念,去打造简单质朴的原生态空间。在设计上,大面积采用黑白灰色调,使用简单的线条,照明、材料等都简化去展现出纯粹的美。









