197㎡四居新中式风格龙湖天宸原著
发布时间:
2021年02月24日
小区:龙湖天宸原著 面积:197㎡ 户型:四居 风格:新中式风格
设计说明
设计说明:本方案选择新中式为装修风格,在整个的装修空间中使用简洁的造型和结构,干净利落的空间布局,优质的选材,融入中式文化的精髓,画面看起来舒适和雅,给人以悠远又雅致的感觉。
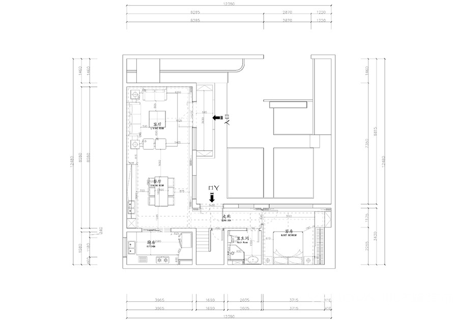
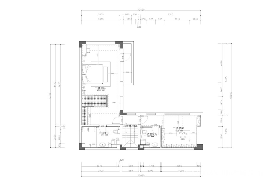
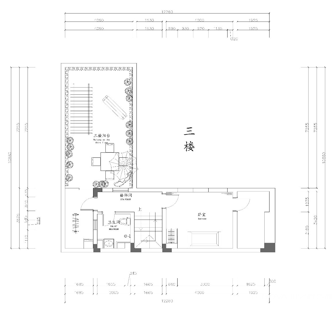
户型图

卧室




客厅




休闲区

书房

厨房


餐厅





京公安网备11010502040911