137㎡四居现代简约风格龙湖梵悦台
发布时间:
2021年01月14日
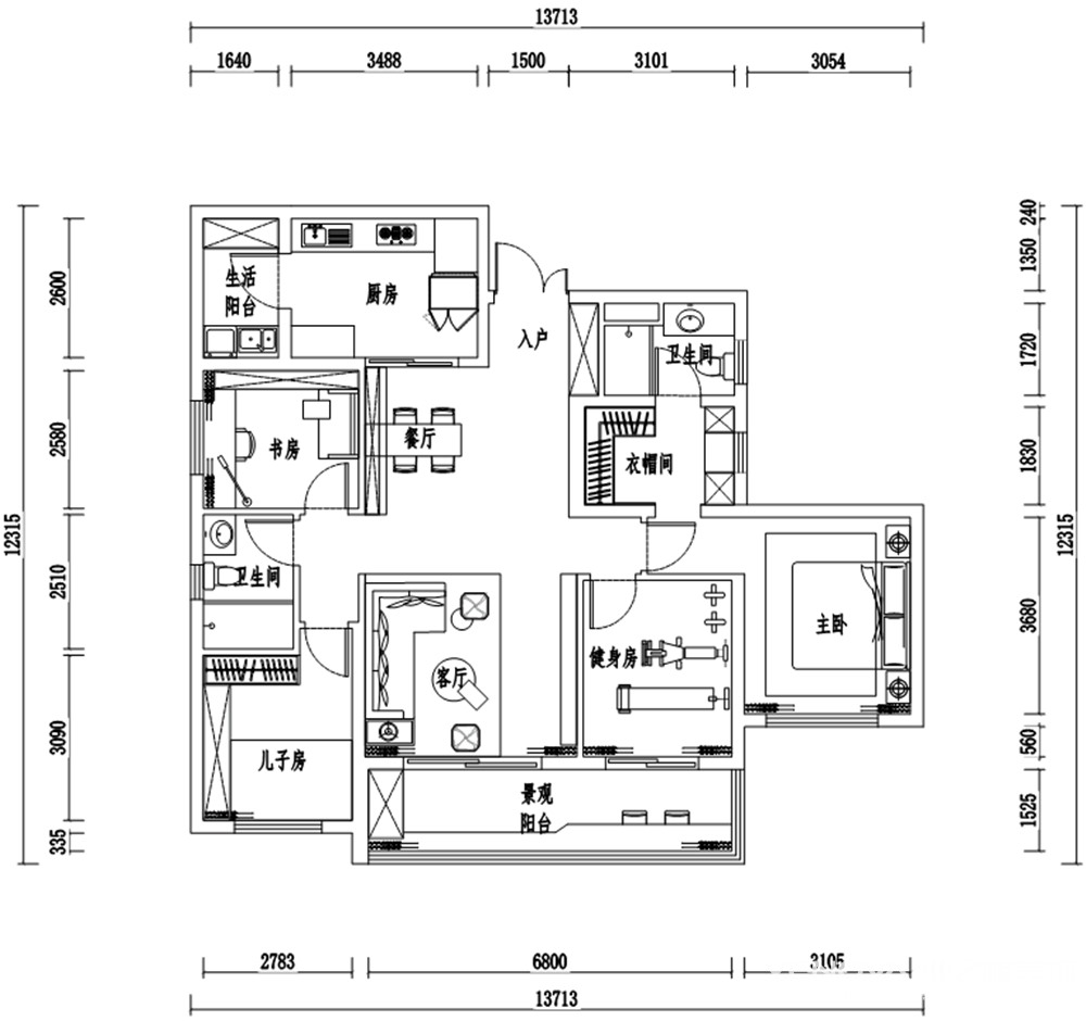
小区:龙湖梵悦台 面积:137㎡ 户型:四居 风格:现代简约风格
设计说明
本案为成都业之峰装饰的现代风格案例,该户型为龙湖梵悦台137平米的精装房。原始硬装为轻奢风格,客户想要结合现代风格元素进行软装设计,在不改变原始硬装的前提下,运用软装的手法进行搭配达到客户想要的空间效果。
户型图

客厅



餐厅

卧室

休闲区

书房





京公安网备11010502040911