130㎡三居现代简约风格海伦印象
发布时间:
2021年01月14日
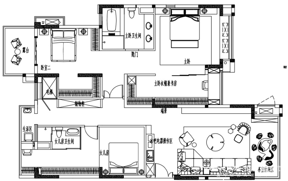
小区:海伦印象 面积:130㎡ 户型:三居 风格:现代简约风格
设计说明
本案为成都业之峰装饰的现代风格案例,该户型为清水房装修。整体风格以现代简约为主,空间布局和功能分区以遵循客户的个性化需求为主,空间以灰色作为基调,通过跳色是提升整体的设计的生命力和活力。
户型图

客厅



儿童房


衣帽间

卧室





京公安网备11010502040911