104㎡二居现代简约风格金辉悦府
发布时间:
2020年12月23日
小区:金辉悦府 面积:104㎡ 户型:二居 风格:现代简约风格
设计说明
这个100㎡户型空间,以舒适面宽客厅打造空间辽阔尺度,派生出自由轻尚的私享生活。薄帘开合间,令居住者能独享一份难得的宁静和归属感。
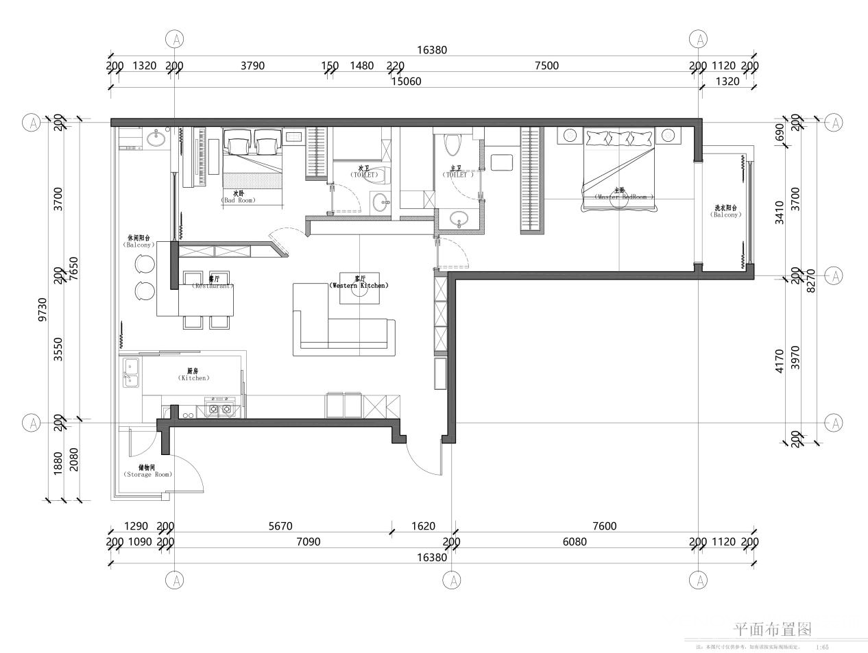
户型图

客厅






餐厅

阳台

休闲区

这个100㎡户型空间,以舒适面宽客厅打造空间辽阔尺度,派生出自由轻尚的私享生活。薄帘开合间,令居住者能独享一份难得的宁静和归属感。









