120㎡二居现代简约风格绿地世纪城
发布时间:
2020年12月23日
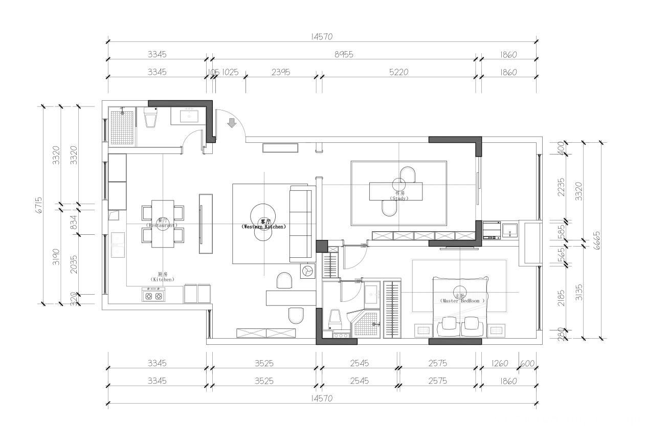
小区:绿地世纪城 面积:120㎡ 户型:二居 风格:现代简约风格
设计说明
一个年轻业主的现代风格公寓,面积 120㎡, 利用自然光线、灯光,为室内带来通透明亮的视觉感受,搭配了大量的木质元素,以最简单的方式创造出温暖与舒适。
客厅空间本身面积不大,但通过户型图 
餐厅

客厅




卧室

卫生间

一个年轻业主的现代风格公寓,面积 120㎡, 利用自然光线、灯光,为室内带来通透明亮的视觉感受,搭配了大量的木质元素,以最简单的方式创造出温暖与舒适。
客厅空间本身面积不大,但通过户型图 






