75㎡二居现代简约风格世茂璀璨公园
发布时间:
2020年12月23日
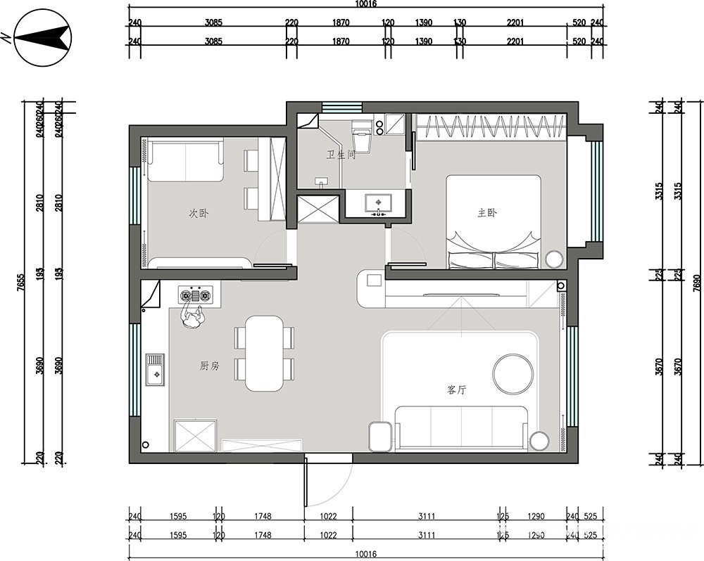
小区:世茂璀璨公园 面积:75㎡ 户型:二居 风格:现代简约风格
设计说明
本套案例房屋面积相对紧凑一些,所以在设计时对于颜色的应用,没有使用过度鲜艳的颜色,而且造型也是力求简单实用,注重功能性和实用性
客厅






本套案例房屋面积相对紧凑一些,所以在设计时对于颜色的应用,没有使用过度鲜艳的颜色,而且造型也是力求简单实用,注重功能性和实用性





