155㎡四居现代简约风格龙湖紫宸香颂
发布时间:
2020年11月06日
小区:龙湖紫宸香颂 面积:155㎡ 户型:四居 风格:现代简约风格
设计说明
成都业之峰装修案例,本案是现代风格,从而让室内室外宽敞明亮、线条和色彩单一又不缺乏趣味,营造出一种空间感和艺术感。
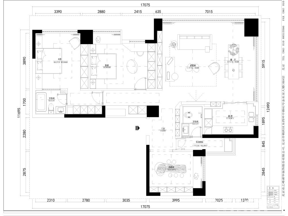
户型图

客厅



书房

卧室


成都业之峰装修案例,本案是现代风格,从而让室内室外宽敞明亮、线条和色彩单一又不缺乏趣味,营造出一种空间感和艺术感。






