217㎡四居新中式风格融创中心
发布时间:
2020年10月20日
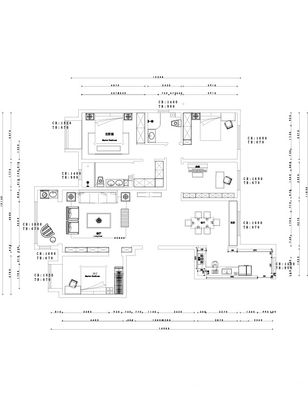
小区:融创中心 面积:217㎡ 户型:四居 风格:新中式风格
设计说明
本套方案为新中式风格,设计师以“山水如画,层峦叠翠”为设计灵感,融合传统和现代、东方和西方的文化元素,诠释居主理想生活的品质和乐趣,营造极具人文、禅意的舒适空间。
户型图

玄关

餐厅

客厅




卧室


本套方案为新中式风格,设计师以“山水如画,层峦叠翠”为设计灵感,融合传统和现代、东方和西方的文化元素,诠释居主理想生活的品质和乐趣,营造极具人文、禅意的舒适空间。








