144㎡四居现代简约风格东南智汇城
发布时间:
2020年09月14日
小区:东南智汇城 面积:144㎡ 户型:四居 风格:现代简约风格
设计说明
在家具配置上,白亮光系列家具,独特的光泽使家具倍感时尚,具有舒适与美观并存的享受。在配饰上,延续了黑白灰的主色调,以简洁的造型、完美的细节,营造出时尚前卫的感觉。
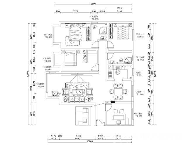
户型图

餐厅


客厅




衣帽间

在家具配置上,白亮光系列家具,独特的光泽使家具倍感时尚,具有舒适与美观并存的享受。在配饰上,延续了黑白灰的主色调,以简洁的造型、完美的细节,营造出时尚前卫的感觉。







