140㎡三居现代简约风格滨河佳居
发布时间:
2020年09月13日
小区:滨河佳居 面积:140㎡ 户型:三居 风格:现代简约风格
设计说明
本案运用天然大理石,高光烤漆柜子,设计简洁、直接、功能化且贴近自然,是一份现代感很强,宁静温馨的现代简约设计。
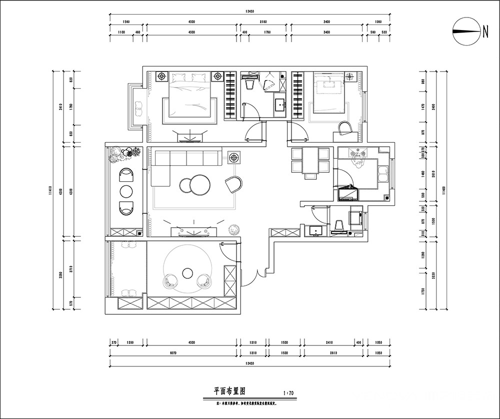
户型图

餐厅


卧室



卫生间

客厅





本案运用天然大理石,高光烤漆柜子,设计简洁、直接、功能化且贴近自然,是一份现代感很强,宁静温馨的现代简约设计。











