130㎡三居现代简约风格白桦林明天
发布时间:
2020年09月13日
小区:白桦林明天 面积:130㎡ 户型:三居 风格:现代简约风格
设计说明
本套户型设计为日式风格,受日本和式建筑影响,讲究空间的流动与分隔,流动则为一室,分隔则分几个功能空间,空间中总能让人静静地思考,禅意无穷。
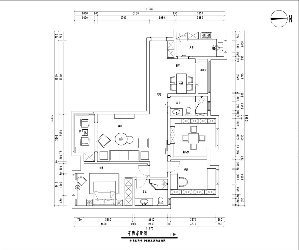
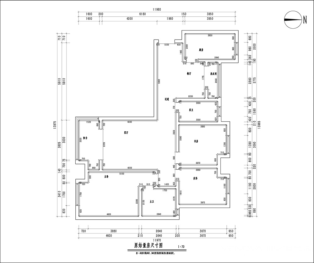
户型图

餐厅

客厅




卧室

本套户型设计为日式风格,受日本和式建筑影响,讲究空间的流动与分隔,流动则为一室,分隔则分几个功能空间,空间中总能让人静静地思考,禅意无穷。






