185㎡四居新中式风格招商依云曲江
发布时间:
2020年07月05日
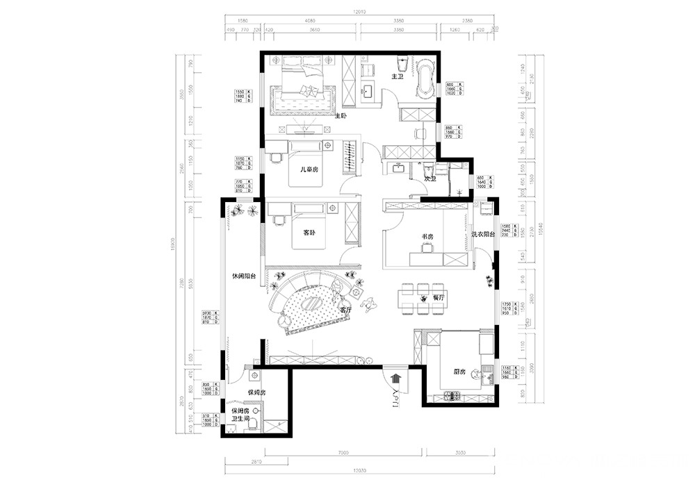
小区:招商依云曲江 面积:185㎡ 户型:四居 风格:新中式风格
设计说明
本案装修案例为大平层,该房子主要是业主夫妇及孩子居住。女人比较喜欢稳重的新中式风格。
原始结构优缺点:南北通透,居于中层采光也比较好。客餐厅很是宽阔。
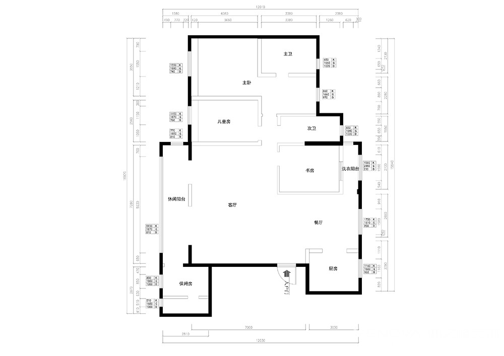
改造方案:将部分空间进行功能改造,做出书房,拆除部分墙体,将空间扩大。
户型图

衣帽间

书房

卧室

餐厅

客厅







京公安网备11010502040911