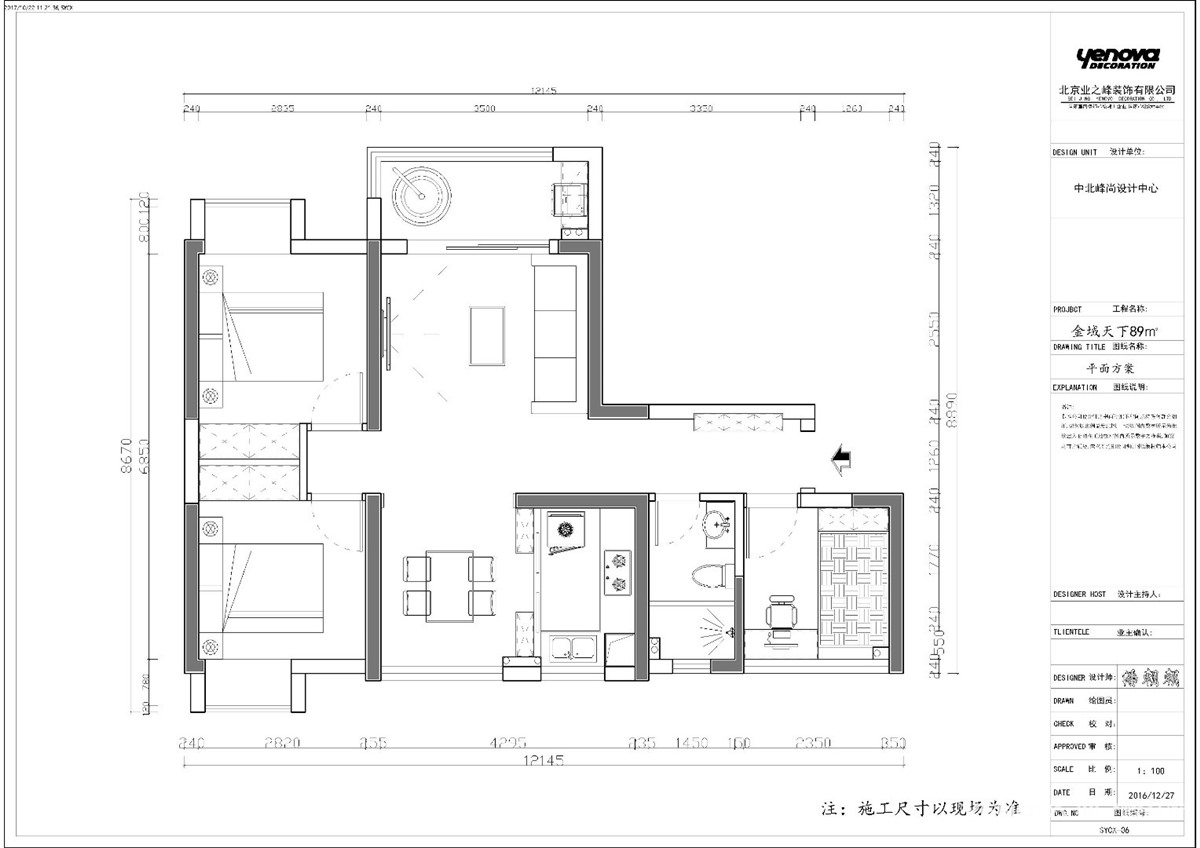
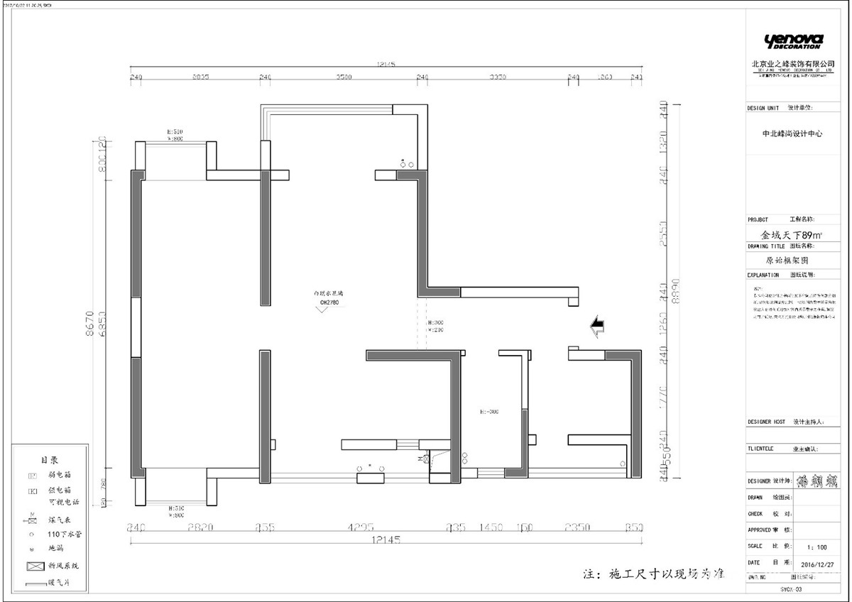
91㎡三居现代简约风格金域天下
发布时间:
2020年07月05日
小区:金域天下 面积:91㎡ 户型:三居 风格:现代简约风格
设计说明
优点:南北通透,通风好,光线明亮,可调整度高。
缺点:餐厅稍小,小房间开门在中间,
设计说明:现代简约风格,整体为暖色系。客厅设计为休闲区域,大小适中,电视背景墙为文化墙砖背景墙,简洁明亮,吊顶为一级顶配合灯带是整个天花层次分明,餐厅实际偏小,使用线条和艺术画等空间感强的元素整理设计餐厅,从视觉上改善餐厅大小。
户型图

客厅



餐厅

卧室





京公安网备11010502040911