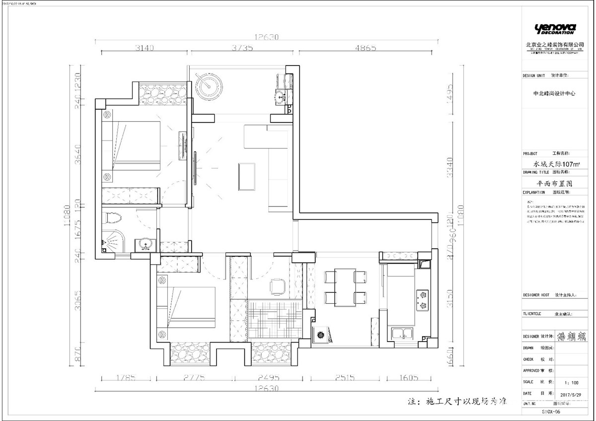
107㎡三居北欧风格水域天际
发布时间:
2020年07月05日
小区:水域天际 面积:107㎡ 户型:三居 风格:北欧风格
设计说明
户型优点:南北通透,通风好,光线明亮,可调整度高。
缺点:厨房偏小。
北欧风格,整体为暖色系。客厅设计为休闲区域,电视背景墙为木地板上墙,简洁明亮,吊顶为一级顶配合灯带是整个天花层次分明,整体色彩家具颜色搭配醒目、简洁大方,
户型图

客厅




卧室

餐厅





京公安网备11010502040911