100㎡三居现代简约风格新界
发布时间:
2020年06月20日
小区:新界 面积:100㎡ 户型:三居 风格:现代简约风格
设计说明
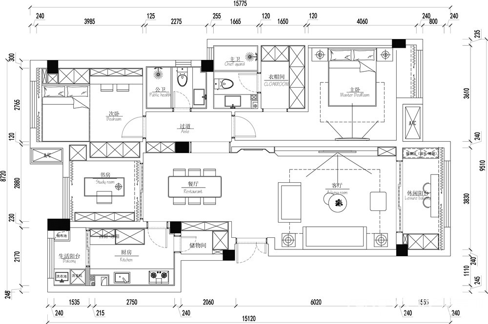
本案例为现代风格的三室两厅。轻奢的理念越来越受到80后90后的喜爱,拒绝繁琐的装潢,又强调质感与精致。客餐厅以简洁的造型与结构合理的家具摆放,区域分界合理自然,着重了空间协调性的表现,体现了符合现代设计理念的形式之美。卧室与书房作为个性化空间,主卧温馨简洁,次卧点缀清新。墙饰中几何元素的巧妙运用,榻榻米与飘窗台的和谐搭配,使得空间不限狭小,格局明亮远阔。不浪费每一处空间的布局与实用性完美结合,使主人的户型图 
休闲区

客厅



卧室





京公安网备11010502040911