320㎡别墅新中式风格万科翡翠公园
发布时间:
2020年06月20日
小区:万科翡翠公园 面积:320㎡ 户型:别墅 风格:新中式风格
设计说明
本案例为新中式风格的320平联排别墅,坐落于万科翡翠公园。本套设计将新中式风格的庄重与优雅发挥得淋漓尽致。以中国传统古典文化为背景,并非简单的堆砌,而是在简约的家具造型中融入中式元素,营造了禅宗式的理性与宁静古朴的氛围。整体明亮的现代系设计摈弃了沉闷的繁冗坠饰,同时保留了极富古典韵味的盆景古玩。整个一楼没有设计卧室,动静分区,保障了良好的睡眠环境,年轻人在楼下娱乐,也不会打扰到老人在楼上休息。娱乐区的传统家具和现代的台球桌、吊饰在色调上达到了和谐,并不突兀;书房大方典雅的装潢升华了主人修身养性的生活境界,尽显成熟高雅格调的气质之美。
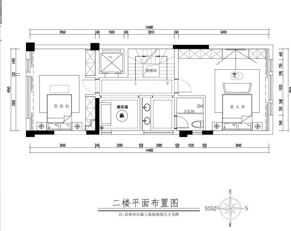
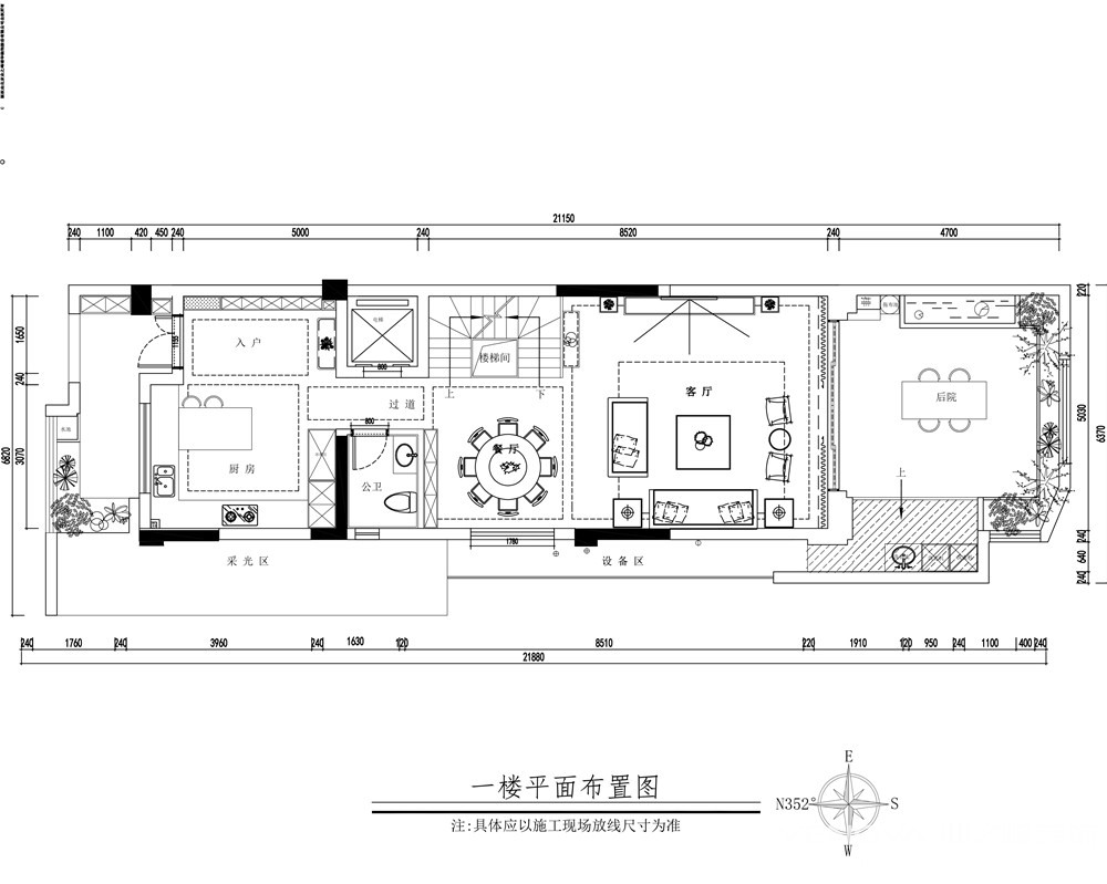
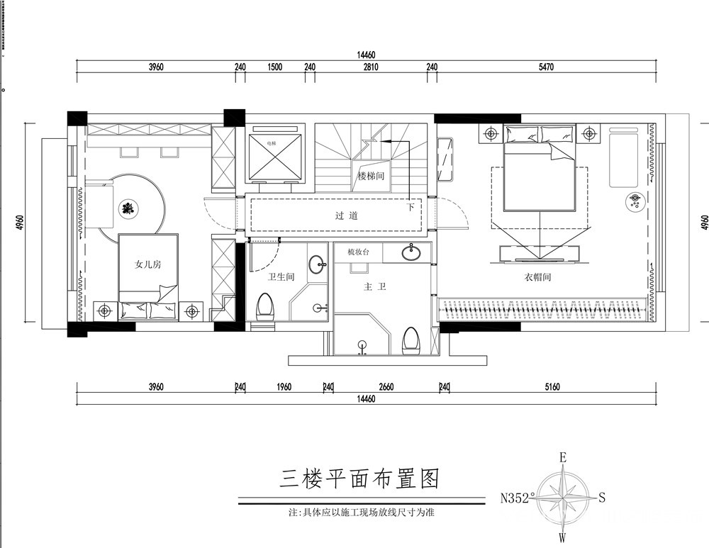
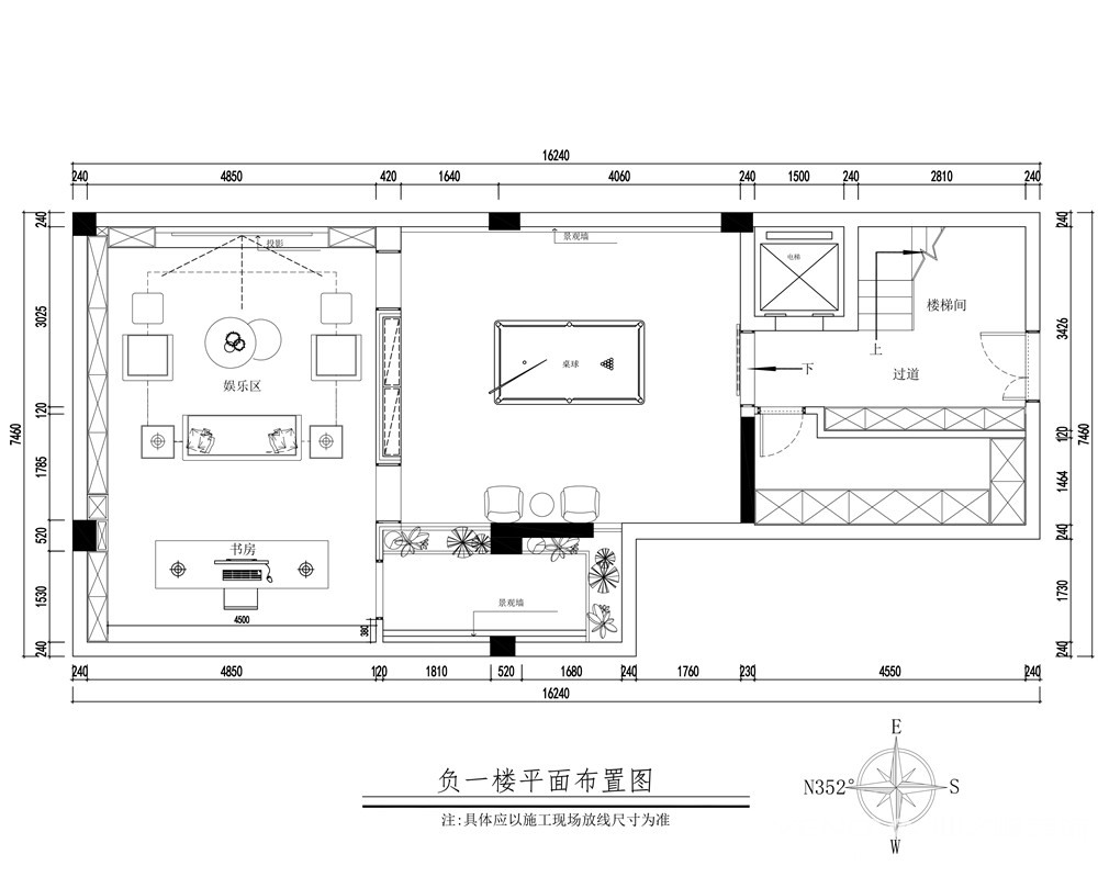
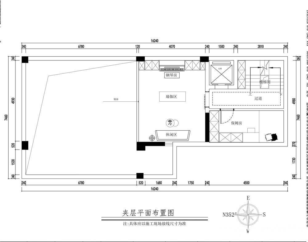
户型图

客厅






厨房

卧室

餐厅

休闲区






京公安网备11010502040911