210㎡四居新中式风格华著中城
发布时间:
2020年06月16日
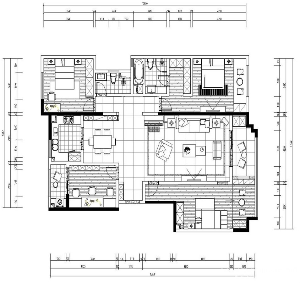
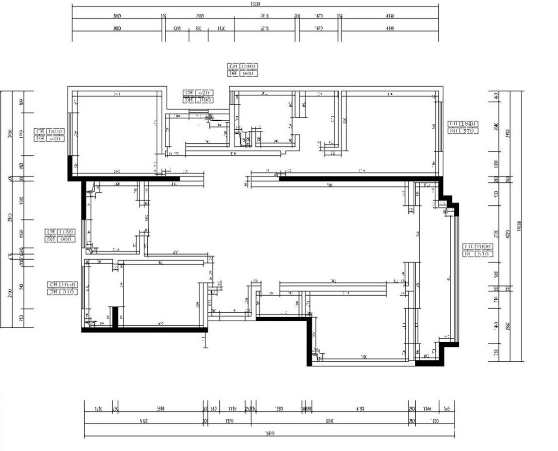
小区:华著中城 面积:210㎡ 户型:四居 风格:新中式风格
设计说明
现代中式风格更多地利用了后现代手法,墙上挂一幅中国山水画等传统的书房里自然少不了书柜、书案以及文房四宝。 中式风格的客厅具有内蕴的风格,为了舒服,中式的环境中也常常用到沙发,但颜色仍然体现着中式的古朴,中式风格这种表现使整个空间,传统中透着现代,现代中揉着古典。这样就以一种东方人的"留白"美学观念控制的节奏,显出大家风范,其墙壁上的字画无论数量还是内容都不在多,而在于它所营造的意境。可以说无论西风如何劲吹,舒缓的意境始终是东方人特有的情怀,因此书法常常是成就这种诗意的最好手段。这样躺在舒服的沙发上,任千年的故事顺指间流淌。
中式风格的代表是中国明清古典传统家具及中式园林建筑、色彩的设计造型。特点是对称、简约、朴素、格调雅致、文化内涵丰富,中式风格家居体现主人的较高审美情趣与社会地位。
更是中式客厅装修的深邃内涵。同一气质的家具,挂画陈设在这方空间,渗透着东方韵味的素简之美,雅既是纯粹,而纯粹更是最震撼人心的,直抵灵魂的美的力量。空灵素净、宽敞明亮、古朴优雅是浓重之后的清浅,是纷繁之后的简素,是激越之后的沉深,国画画栋、古玩字画灵动自若给每个摆件都赋予了生命,烘托出一种安逸舒适、逍遥自乐的美好时光。在惬意、悠闲的时光里漫步历史的积淀,是完美的、美好的。
户型图 
卧室


餐厅

客厅








京公安网备11010502040911