160㎡四居新中式风格亿龙金河湾
发布时间:
2020年06月16日
小区:亿龙金河湾 面积:160㎡ 户型:四居 风格:新中式风格
设计说明
在这套设计中,整个空间以白色为主的现中风格,白色柜门与黑色胡桃柜体使整栋房间庄严中不显得严肃,整体以对称性造型和山水画将房屋塑造的更加温馨,富有诗意
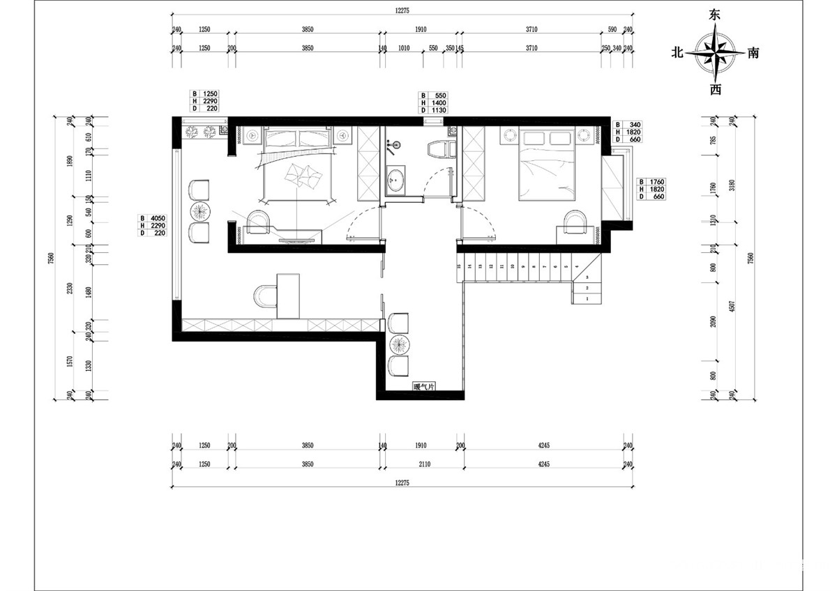
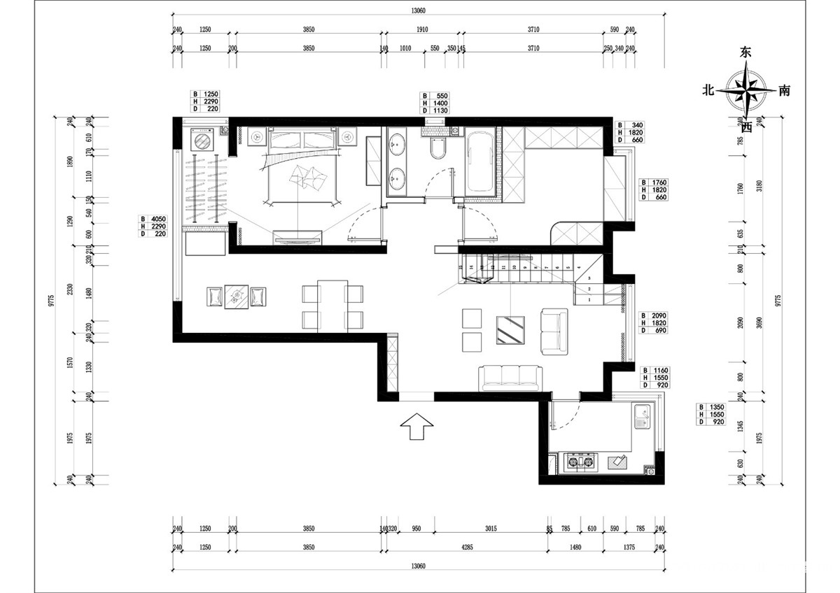
户型图

卧室



客厅




餐厅

在这套设计中,整个空间以白色为主的现中风格,白色柜门与黑色胡桃柜体使整栋房间庄严中不显得严肃,整体以对称性造型和山水画将房屋塑造的更加温馨,富有诗意








