65㎡二居现代简约风格景泰花园
                  发布时间:
                  2020年06月13日
                
 小区:景泰花园 面积:65㎡ 户型:二居 风格:现代简约风格
设计说明
 咨询电话:0791-86296016,此案例定义为现代风格,在仅有的65平方里实现了麻雀虽小,五脏俱全的理想,在设计上,利用玄关柜体制造客厅背景墙,也同时做出隔断,做成端景。与玄关柜体一体的是鞋柜跟换鞋凳。搭配上次卧书房的榻榻米,厨房的吧台设计,在这小小的空间里实现了理想中完美的家。
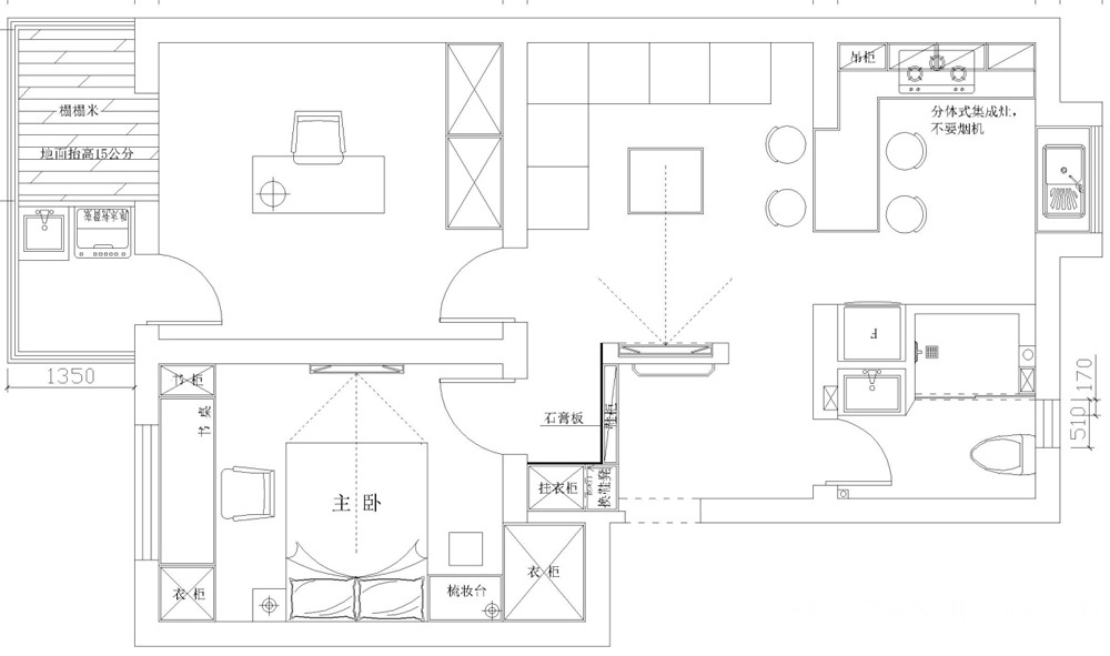
户型图
 
客厅
 



餐厅
 

 


京公安网备11010502040911