101㎡二居现代简约风格格调平园
发布时间:
2020年06月11日
小区:格调平园 面积:101㎡ 户型:二居 风格:现代简约风格
设计说明
整个设计将中式情韵以简雅静宁的格调呈现出来,让业主在木作的纹理 阳关的渗透 清茶的幽香中,品味生活的烟火气与安适感。装饰品不多且简净,几只茶坛,几本闲书,叹茶翻书,便足以架构起居住者的生活日常。
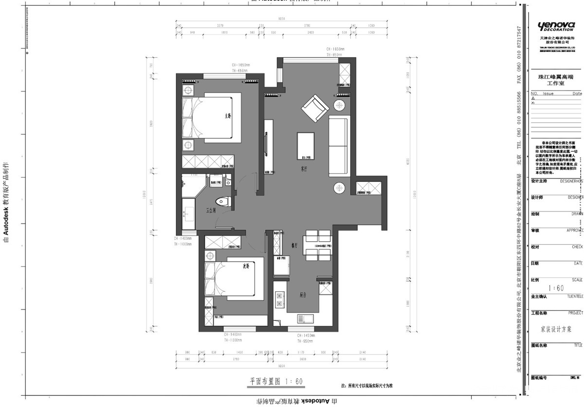
户型图

卧室



卫生间

餐厅

客厅


厨房





京公安网备11010502040911