133㎡三居现代简约风格国源和天下
发布时间:
2020年06月02日
小区:国源和天下 面积:133㎡ 户型:三居 风格:现代简约风格
设计说明
本套方案为美式风格,美式风格非常重视生活的自然舒适性,充分显现朴实风味。布艺是美式风格中非常重要的运用元素,本色的棉麻是主流,布艺的天然感现美式风格能很好地协调,在陈设上更是丰富,宽敞的墙面是绝对不能空荡的,即:有文化感、有贵气感,还不可缺少自在感与情调感
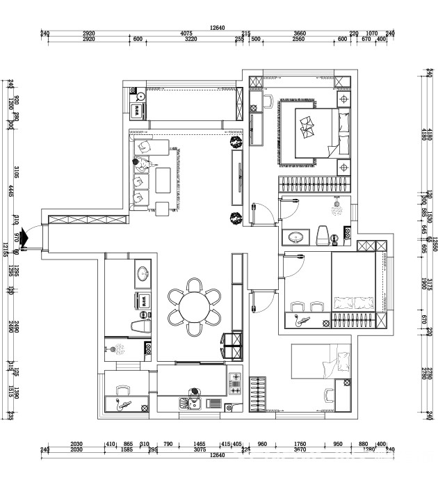
户型图

客厅




餐厅




玄关





京公安网备11010502040911