60㎡一居现代简约风格贾村新村
发布时间:
2020年06月02日
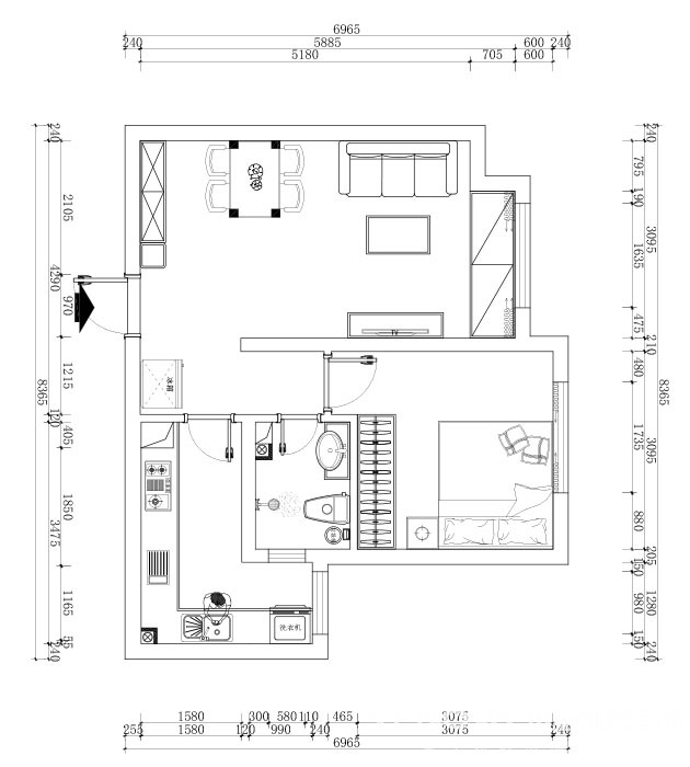
小区:贾村新村 面积:60㎡ 户型:一居 风格:现代简约风格
设计说明
本套方案为现代简约风格,在如今的繁忙生活中,简洁大方的设计风格更受人们的推崇,看惯了现在生活中的繁华,与花天酒地,经过了一整天的忙碌,我们更想在一个安静、舒适、宽敞明亮的环境中生活,来消除视觉的疲劳,忘记都市的喧嚣,享受生活的宁静,而现代简约风格的室内装修设计满足了这一需求,现代简约风格亦是现代流行装修风格的一种。
户型图

餐厅



客厅




卧室

厨房





京公安网备11010502040911