90㎡二居现代简约风格东南智汇城
发布时间:
2020年06月02日
小区:东南智汇城 面积:90㎡ 户型:二居 风格:现代简约风格
设计说明
本套方案为现代简约风格,简约并不是缺乏设计要素,它是一种更高层次的创作境界。通过空间布局上的合理运用,既能在生活上满足客户的需求,又传达出现代简约风格独特的灵魂。用利落的线条完美的材质和高档的家具赋予了空间生命力。亮色的点缀和搭配能产生别样的美,为家居带来舒适和安逸。
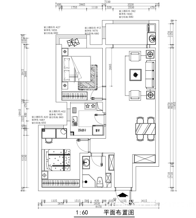
户型图

客厅




餐厅





京公安网备11010502040911