50㎡二居现代简约风格立丰国际购物广场
发布时间:
2020年04月28日
小区:立丰国际购物广场 面积:50㎡ 户型:二居 风格:现代简约风格
设计说明
此方案的设计理念以为现在的年轻人所打造属于他们自己的空间。
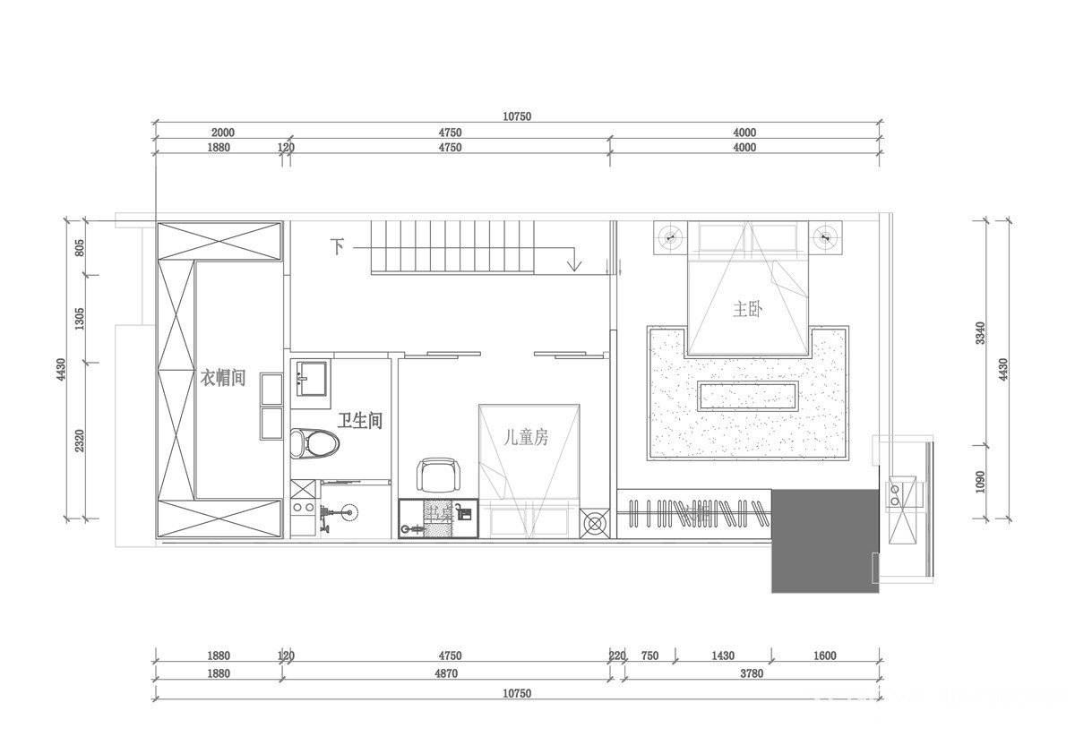
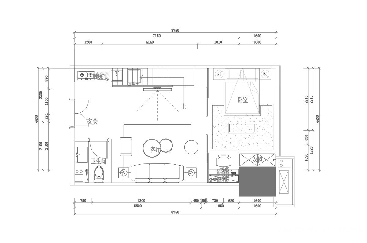
考虑到现在年轻人的生活方式以及生活习惯问题,在设计中没有用传统的封闭式厨房而采用了当下比较流行且适合年轻人的开放式厨房,节省了空间及采光面积,使整个房间更加的通透。二楼则是用大面积做了衣帽间,使得满足正常衣物及首饰的安放。利用借光的方式,将二楼隔除了一个房间,从而满足主人的需要。
户型图

客厅



卫生间


卧室







京公安网备11010502040911