130㎡四居现代简约风格紫薇花园
                  发布时间:
                  2020年04月16日
                
 小区:紫薇花园 面积:130㎡ 户型:四居 风格:现代简约风格
设计说明
 设计理念:日式住宅空间不娇饰,不做作,不违背人的自然天性以及自然事物的存在状态,却呈现 了一个令人向往的诗意境界,让居住者从喧闹中抽离出来,回归最本真的自在与安宁。
 设计简单,用才天然,最大化地契合了“清净”二字。在材料的使用上,遵循自然之道,追求一种称之为“素面朝天”的天然美感。天花板,墙面,地面。让空间既散发出温润质朴的气息,又兼具环保,自然本色,不刷油漆,不加粉饰,令人产生远离尘嚣而悠然林中之感。将日本人的审美情趣和心灵感受做了淋漓尽致表达。
在空间动线规划上,处理得流畅,利落,让客厅和餐厅,茶室,相互连通,方便主家及到访的客人坐在沙发上从容的喝茶。设计理念:日式住宅空间不娇饰,不做作,不违背人的自然天性以及自然事物的存在状态,却呈现 了一个令人向往的诗意境界,让居住者从喧闹中抽离出来,回归最本真的自在与安宁。
 设计简单,用才天然,最大化地契合了“清净”二字。在材料的使用上,遵循自然之道,追求一种称之为“素面朝天”的天然美感。天花板,墙面,地面。让空间既散发出温润质朴的气息,又兼具环保,自然本色,不刷油漆,不加粉饰,令人产生远离尘嚣而悠然林中之感。将日本人的审美情趣和心灵感受做了淋漓尽致表达。
在空间动线规划上,处理得流畅,利落,让客厅和餐厅,茶室,相互连通,方便主家及到访的客人坐在沙发上从容的喝茶。
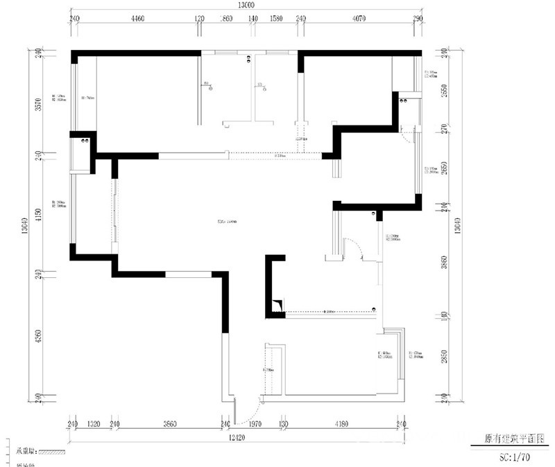
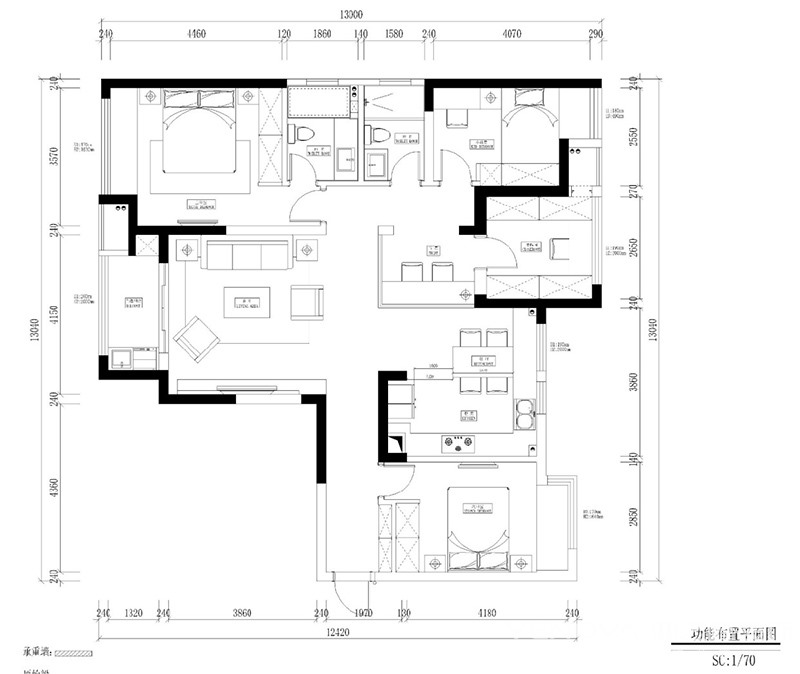
户型图
 
客厅
 



厨房
 
卧室
 

餐厅
 

 


京公安网备11010502040911