123㎡三居新中式风格世茂都
发布时间:
2020年04月16日
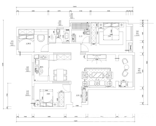
小区:世茂都 面积:123㎡ 户型:三居 风格:新中式风格
设计说明
本案设计主题禅道茶煎,一花一叶,观众生妙相,一茶一道,品人生百味。干净清冽是茶亦道,对照方案,亦是不多半分不差一毫。看似对立却又冥冥中和谐一统,是设计师在陈设中精巧之处。脱离传统繁复生硬陈规,独辟蹊径将禅与茶糅合在空间之中,寻求内心回归居所自然与安宁。
户型图

书房

客厅




餐厅


卧室








京公安网备11010502040911