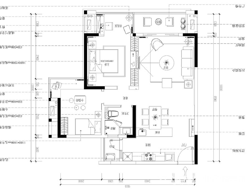
105㎡二居新中式风格华府新桃园
发布时间:
2020年04月16日
小区:华府新桃园 面积:105㎡ 户型:二居 风格:新中式风格
设计说明
本案为现代简约风格,主色调为棕灰色调大量运用了富有质感的自然元素,质朴天然石材,米色大理石瓷砖,木饰面,金属扣条,并强调材质交织的魅力,各种材质衔接自然并流畅,构建出一个平衡且理性的生活方式。纯净大气又气定神闲,让人一进家门便忘却了一天的烦恼与疲惫。
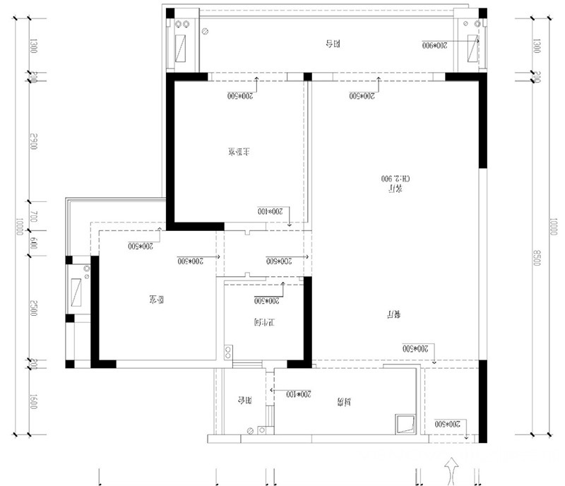
户型图

客厅





卧室





京公安网备11010502040911