98㎡三居现代简约风格弘石湾
发布时间:
2020年03月22日
小区:弘石湾 面积:98㎡ 户型:三居 风格:现代简约风格
设计说明
本案例针对业主需求,设计师为其甄选了现代风格,充分了解材料的质感与性能,注重环保与材质之间的和谐与互补。新技术和新材料的合理应用是至关重要的一个环节,在人与空间的组合中反映流行与时尚才更能够代表多变的现代生活。
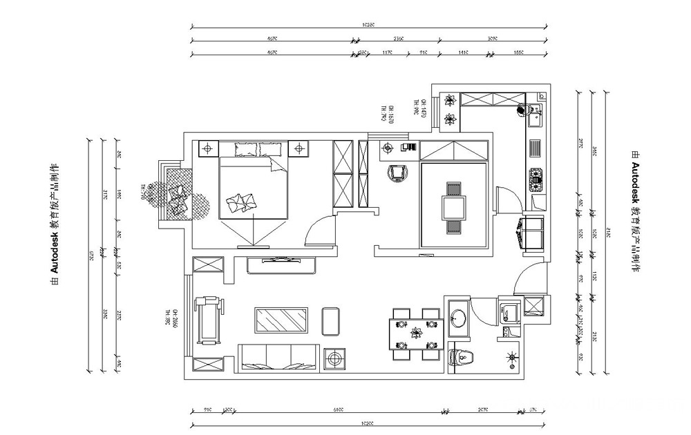
户型图

儿童房

玄关


客厅


卧室

阳台





京公安网备11010502040911