168㎡三居美式风格汇君城
发布时间:
2020年03月22日
小区:汇君城 面积:168㎡ 户型:三居 风格:美式风格
设计说明
本案例针对业主需求,设计师为其甄选了美式风格,保留传统美式的典雅,避开繁琐与堆砌,运用现代简约的手法来塑造简式美风的高贵,不失奢华,又无轻浮。
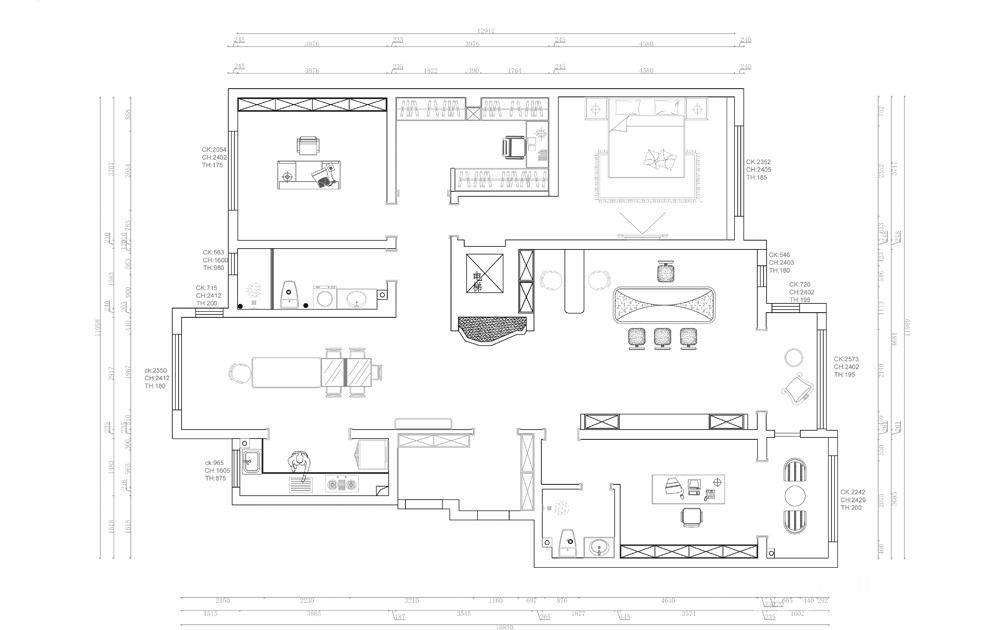
户型图

餐厅

玄关

客厅




卧室

本案例针对业主需求,设计师为其甄选了美式风格,保留传统美式的典雅,避开繁琐与堆砌,运用现代简约的手法来塑造简式美风的高贵,不失奢华,又无轻浮。







