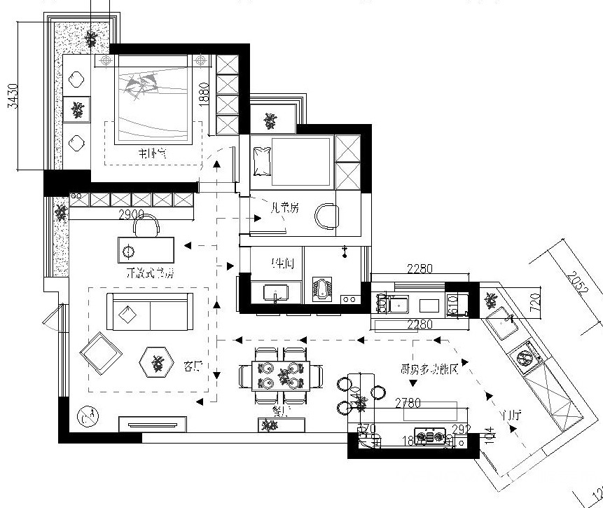
62㎡二居现代简约风格颐澜湾
发布时间:
2020年01月11日
小区:颐澜湾 面积:62㎡ 户型:二居 风格:现代简约风格
设计说明
咨询电话:0791-86296016,本案例业主的房子是前期考虑自住,后期考打算出租,因此装修上并不想太复杂,已做现代风格为主,考虑业主自住需要,在客厅处开辟了一处作为开放式书房,方便办公,此案例把麻雀虽小五脏俱全体现的淋漓尽致。
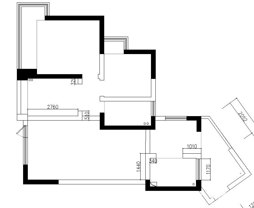
户型图

餐厅

客厅




厨房


书房

卧室





京公安网备11010502040911