135㎡四居新中式风格保利华庭
发布时间:
2020年01月09日
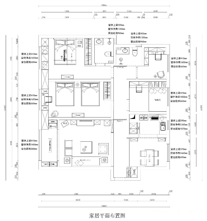
小区:保利华庭 面积:135㎡ 户型:四居 风格:新中式风格
设计说明
中式风格是中国5000年历史沉底下来的产物,含蓄优雅,格调高雅,正如中国优秀传统文化一般迷人。 而新中式诞生于中国传统文化复兴的新时期,摒弃了中式风格固有的刻板、老气,在古典的基础上融合了现代特色,设计也更加符合大众的需求。
客厅



















中式风格是中国5000年历史沉底下来的产物,含蓄优雅,格调高雅,正如中国优秀传统文化一般迷人。 而新中式诞生于中国传统文化复兴的新时期,摒弃了中式风格固有的刻板、老气,在古典的基础上融合了现代特色,设计也更加符合大众的需求。


















