180㎡四居新中式风格金融街听湖小镇别墅
发布时间:
2020年01月05日
小区:金融街听湖小镇别墅 面积:180㎡ 户型:四居 风格:新中式风格
设计说明
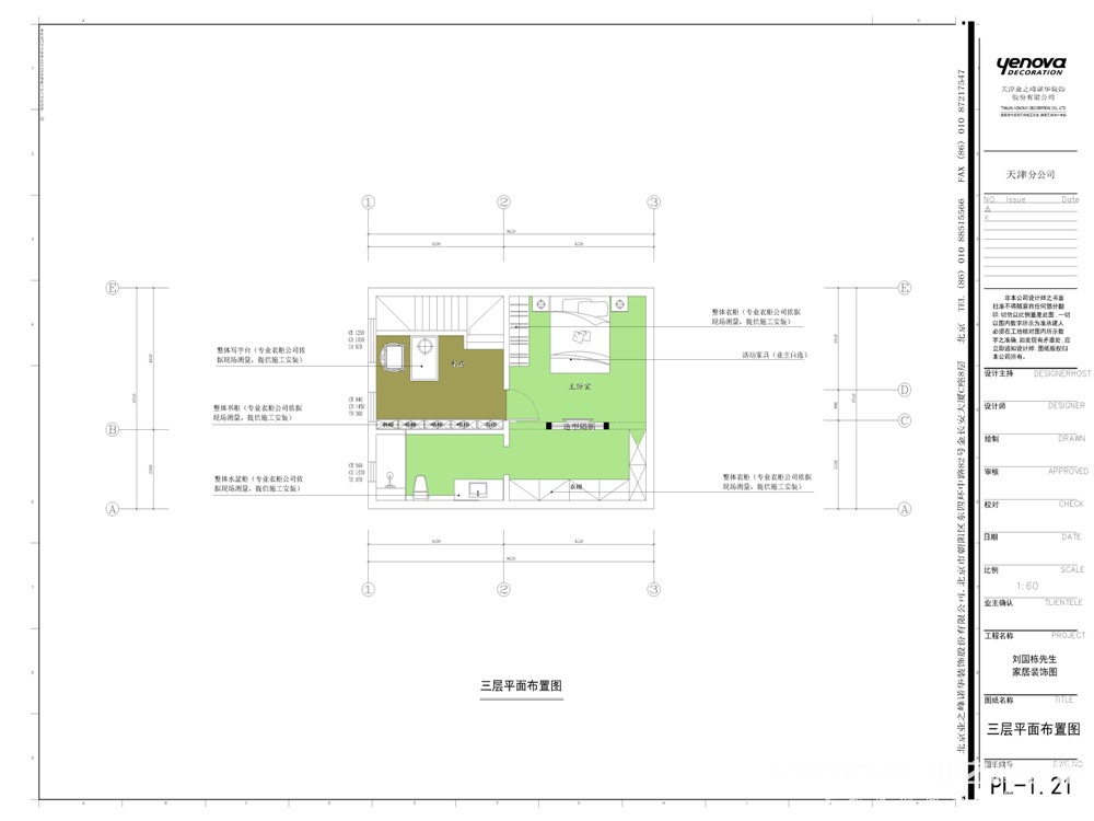
本案为三层别墅.室内使用面积为180.7m2. 本案设计师以中式的设计风格为主调,全面考虑,在总体布局方面,尽量满足五口之家生活上的需求,创造一个温馨,健康的现代家庭环境.户型图 
卫生间

卧室





客厅




厨房


楼梯

玄关

书房





京公安网备11010502040911