130㎡二居现代简约风格兰石·豪布斯卡
发布时间:
2020年01月04日
小区:兰石·豪布斯卡 面积:130㎡ 户型:二居 风格:现代简约风格
设计说明
现代简约风格比较注重空间的使用功能,废弃繁琐的装饰,室内布置也会按功能区分的原则进行,家具色彩造型非常潮流,以个性化、简单化装修方式打造舒适家居
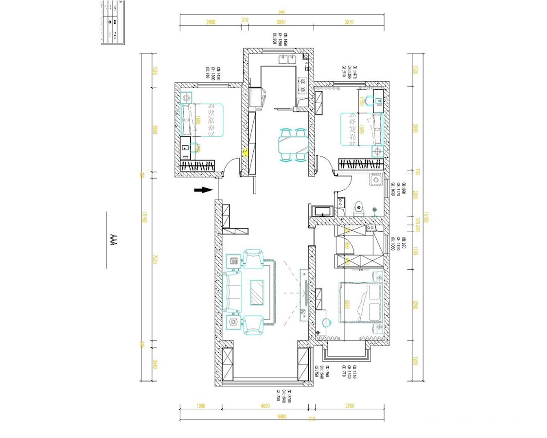
户型图

客厅




卧室

现代简约风格比较注重空间的使用功能,废弃繁琐的装饰,室内布置也会按功能区分的原则进行,家具色彩造型非常潮流,以个性化、简单化装修方式打造舒适家居





