89㎡二居现代简约风格中海·和平之门
发布时间:
2019年12月08日
小区:中海·和平之门 面积:89㎡ 户型:二居 风格:现代简约风格
设计说明
本案设计为现代简约风格。,客厅是主人品味的象征,体现了主人品格,地位,也是交友娱乐的场合,电视背景墙采用石膏板做的造型,既简单又大方,再加上虚光灯带,配上顶部照下来的灯光,整个电视背景墙把客厅提升起来。沙发背景墙只做了简单的处理,上面挂装饰画。餐厅是家居生活的心脏,不仅要美观,更重要的实用性,整体性。背景是简单的几何造型,却提升了整体空间的效果,餐厅的灯光很重要既不能太强又不能太弱,灯光则以温馨和暖的黄色为基调。主卧室以深色家居为主,储物空间丰富,整体感觉沉稳大气安静,淡蓝色窗帘尤为灵动。次卧室采用榻榻米设计,空间利用率更高,功能更齐全。
设计风格 简约现代风格
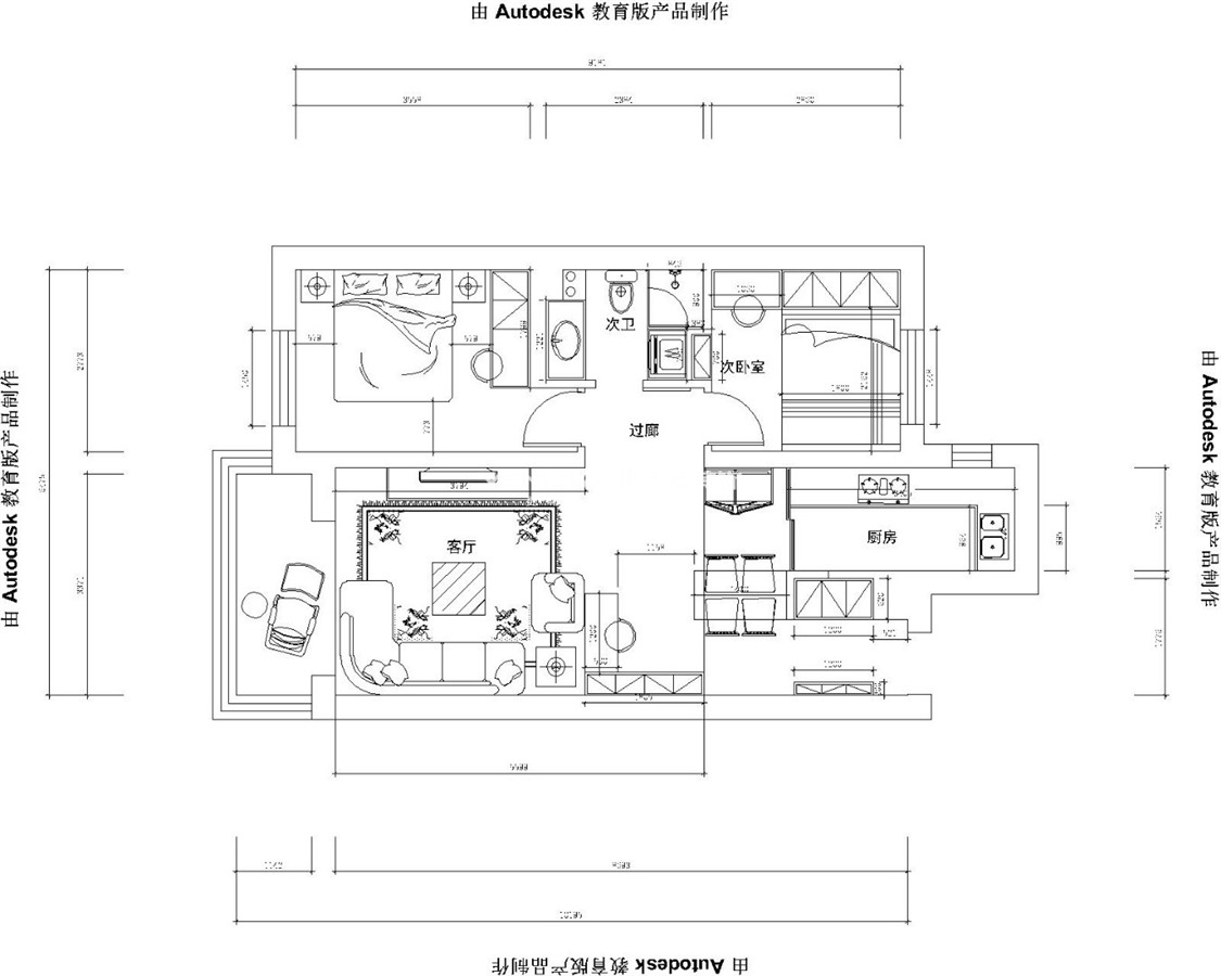
户型图

客厅


卧室


玄关

卫生间

餐厅





京公安网备11010502040911