200㎡四居新中式风格山水香提溪墅
发布时间:
2019年10月14日
小区:山水香提溪墅 面积:200㎡ 户型:四居 风格:新中式风格
设计说明
新中式风格是将传统的中国元素通过提炼融合到现代人的生活环境中和审美习惯的一种新型的装饰风格,这样的设计既能体现传统中国元素,又能表现出现代人对于古典文化的喜爱
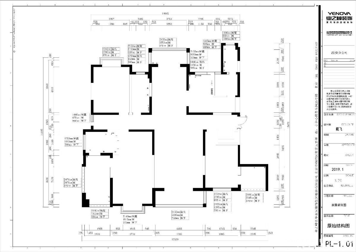
户型图

客厅




餐厅


卧室

新中式风格是将传统的中国元素通过提炼融合到现代人的生活环境中和审美习惯的一种新型的装饰风格,这样的设计既能体现传统中国元素,又能表现出现代人对于古典文化的喜爱







