135㎡三居现代简约风格安和小区
发布时间:
2019年09月21日
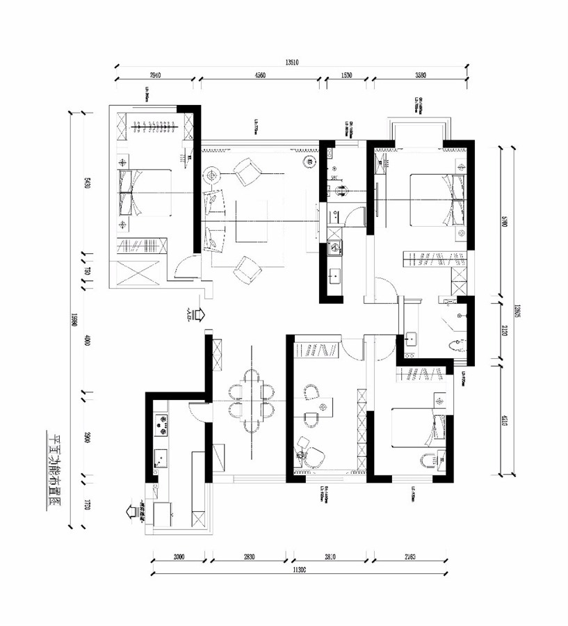
小区:安和小区 面积:135㎡ 户型:三居 风格:现代简约风格
设计说明
本案位于安和小区,是一个三房两厅两卫一厨的户型,采用现代简约的风格,客厅没有主灯,顶面由筒灯组成,能达到以少胜多、以简胜繁的效果。现代简约对色彩、材料的质感要求很高。客厅背景墙的石材和护墙板的搭配,简单时尚,餐厅背景墙的硬包,提高空间的品质。在家具配置上,棕色系列的沙发倍感时尚,具有舒适与美观并存的享受。在配饰上,撞色抽象的装饰画,营造出时尚前卫的感觉,也为整个家增添活力。暖色灯光的渲染整个环境,一丝朝气,一片温馨,冷色和暖色的相互配合,共同演奏了和谐的乐章。
户型图

客厅




餐厅

卧室

卫生间





京公安网备11010502040911