140㎡三居现代简约风格郑州碧桂园3期
发布时间:
2019年09月21日
小区:郑州碧桂园3期 面积:140㎡ 户型:三居 风格:现代简约风格
设计说明
设计说明:轻奢他是以极致简约为基础的,通过一些精致的软装元素来凸显质感,同时也浓缩着意想不到的功能与细节,从而正弦着一种高品质的生活方式。通过巧妙色彩的搭配,才能体现出他丰富的美丽,演绎一种“低调的奢华”令空间的质感更为饱满。木制的墙饰和高级灰在餐厅墙的点缀可以显现出优雅。
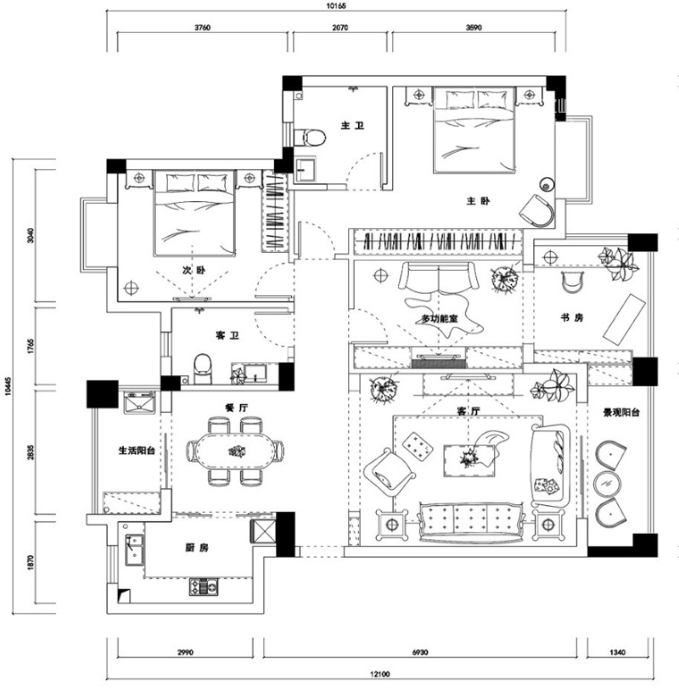
户型图

客厅







京公安网备11010502040911