140㎡三居现代简约风格中铁西子香荷
发布时间:
2019年09月20日
小区:中铁西子香荷 面积:140㎡ 户型:三居 风格:现代简约风格
设计说明
本案为现代风格案列,二手房全面改造,客户为了两个小孩读书方便在这里买了二手房,在第一次现场量房的时候对我们的量房箱很感兴趣,本身之前还有三个公司在对比的,在碰方案的时候就明确和我们讲选择我们了,我问什么这么快就确定下来了,他说我们的量房太专业了,他是开监理公司的,对这些都很懂。所以在后面的设计及材料上面很快就过了。客户非常满意。
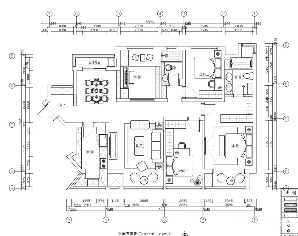
户型图

客厅


阳台

卧室





京公安网备11010502040911