200㎡复式新中式风格香山长岛
发布时间:
2019年09月20日
小区:香山长岛 面积:200㎡ 户型:复式 风格:新中式风格
设计说明
本案是新中式风格,客户是蓝光集团的中层,对于装修方面资源以及经验特别丰富,如果按照常规思路来考虑肯定是拿不下的,所以我们在设计的过程中主要以使用度及体验感来着手,装饰为互,充分的考虑客户对于书房的重视程度以及对客餐厅空间的要求来做出大胆的改变,最后客户非常满意。
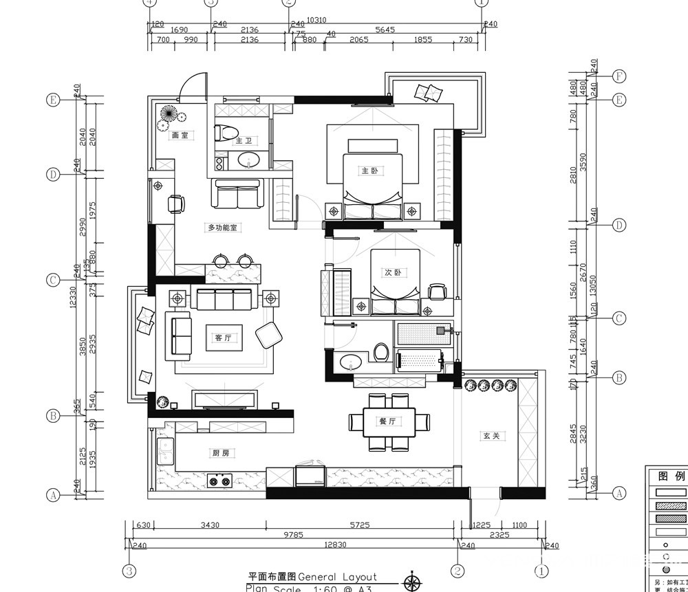
户型图

客厅


卧室

休闲区





京公安网备11010502040911