95㎡二居现代简约风格翰澜苑
发布时间:
2019年08月24日
小区:翰澜苑 面积:95㎡ 户型:二居 风格:现代简约风格
设计说明
根据业主的需求,业主喜欢北欧风格营造出的幸福温馨、休闲浪漫的感觉。在本案例设计中,我们尽量体现这一原则,均以简洁的造型、纯洁的质地、精细的工艺为其特征。 北欧风格装修特点.软装偏好天然质地 北欧风格的居家家具,浅淡的色彩、洁净的清爽感,让居家空间得以彻底降温。
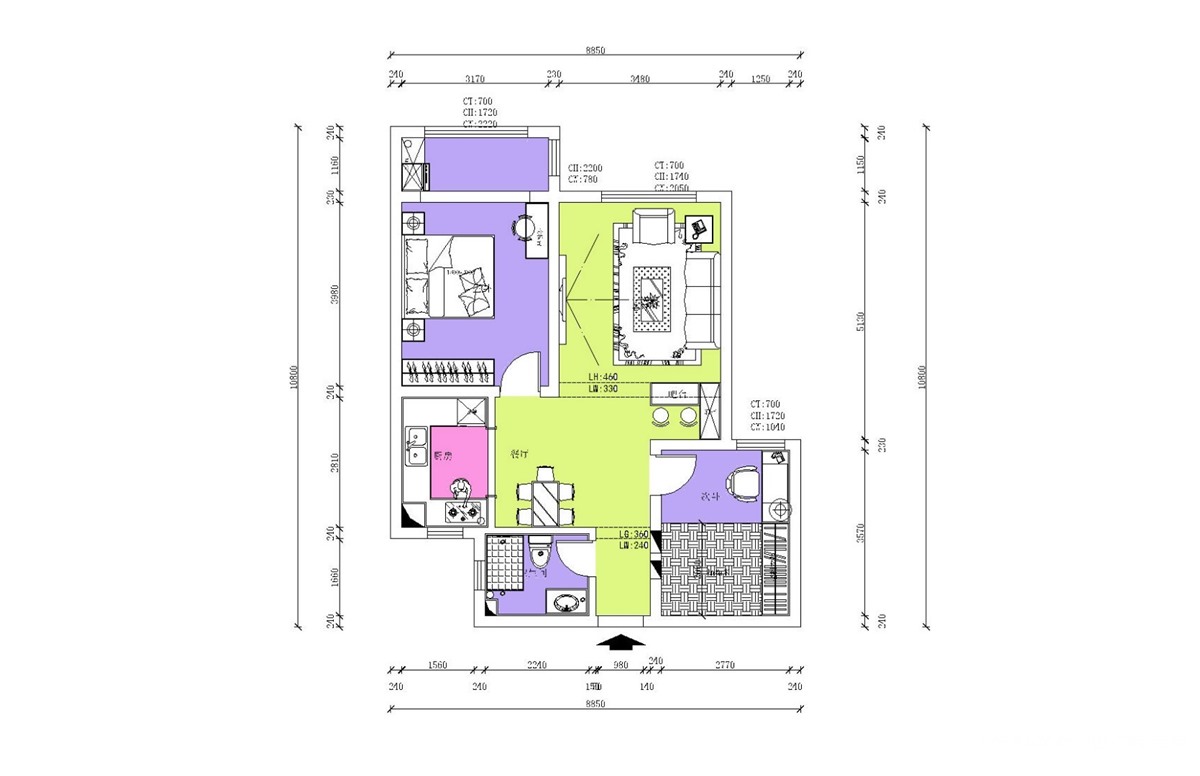
户型图

餐厅

客厅



卧室

儿童房





京公安网备11010502040911