120㎡二居现代简约风格双楠宜苑
发布时间:
2025年11月07日
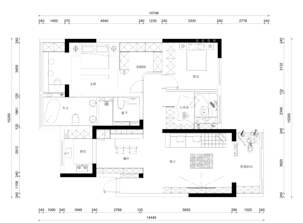
小区:双楠宜苑 面积:120㎡ 户型:二居 风格:现代简约风格
设计说明
武侯区双楠宜苑 120㎡两居室,以 “简雅致用,自在栖居” 为核心,深度诠释现代简约风格的本质,兼顾空间美学与生活实用性。
设计摒弃繁杂装饰,以 “少即是多” 为原则,用简洁流畅的线条勾勒空间轮廓,搭配浅白、原木色等温润基色调,局部以低饱和度亮色点缀,营造通透清爽且不失温度的视觉感受。客餐厅采用一体化布局,通过顶面简约吊顶自然划分功能区域,动线流畅开阔,满足日常互动与用餐需求。
两间卧室功能明确,主卧侧重静谧休憩氛围,简化造型突出舒适感;次卧根据居住需求灵活规划,可兼顾储物与临时办公功能。全屋强化收纳系统,通过定制柜体最大化利用空间,减少视觉杂乱。整体设计以专业经验平衡美观与实用,适配现代生活节奏,为居者打造一个简约而不简单、舒适且自在的理想居住空间。与温度的简约宜居空间
户型图

客厅



书房



餐厅


阳台


衣帽间




玄关


卧室





儿童房


厨房





卫生间








京公安网备11010502040911