120㎡三居现代简约风格兵工新城
发布时间:
2019年06月21日
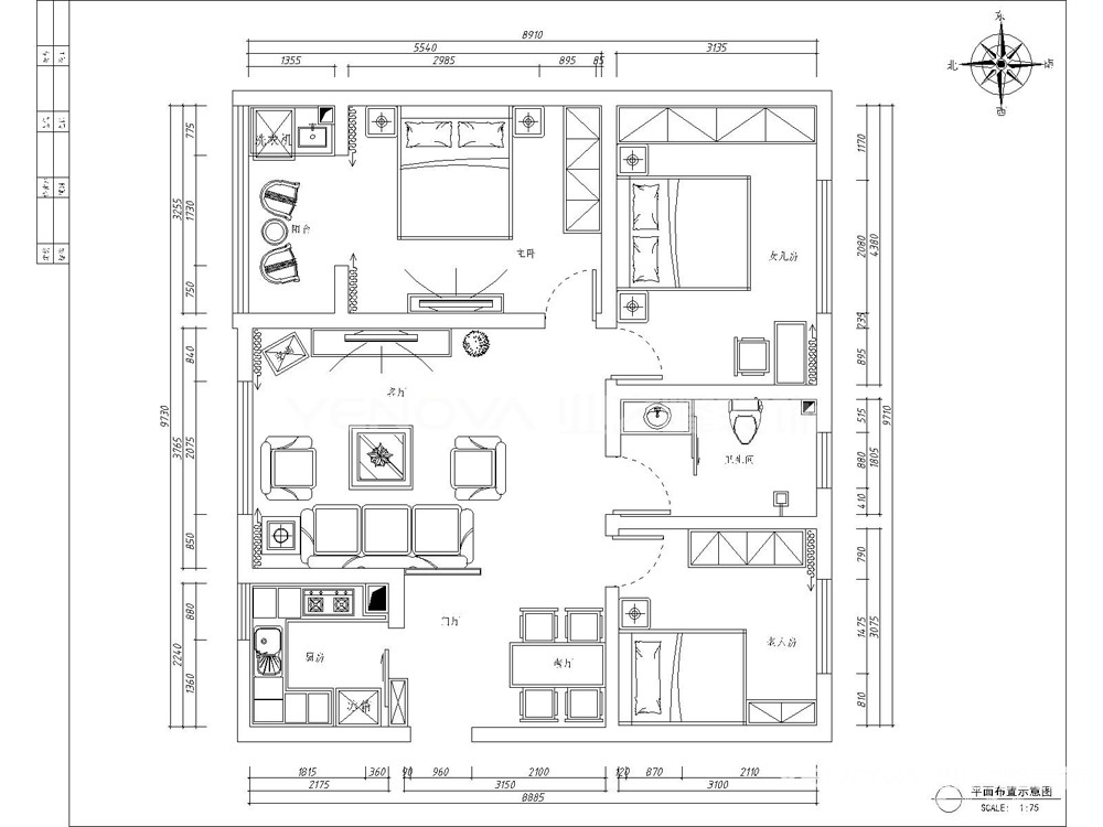
小区:兵工新城 面积:120㎡ 户型:三居 风格:现代简约风格
设计说明
本案是三口之家,女儿常年在国外工作,此房作为父母的养老房。整体布局合理协调,光线通透、色调温暖。以原木色和米色为主色调,体现一种原生态的素雅之美。让居住者置身其中的时候能够充分感受到人与空间的平衡。
客厅




本案是三口之家,女儿常年在国外工作,此房作为父母的养老房。整体布局合理协调,光线通透、色调温暖。以原木色和米色为主色调,体现一种原生态的素雅之美。让居住者置身其中的时候能够充分感受到人与空间的平衡。



