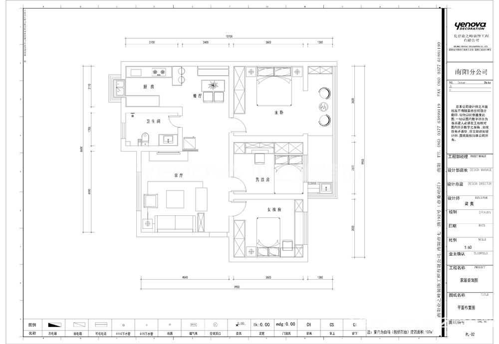
107㎡三居新中式风格案例库
发布时间:
2019年06月21日
小区:案例库 面积:107㎡ 户型:三居 风格:新中式风格
设计说明
本案女业主所从事的工作是家居建材行业,平时工作中也会看到各式各样的设计和装修案例,她结合自身需求综合比较之后,最终还是钟爱古典但同时又不失优雅的美式风格。男业主工作比较忙碌,平日经常出差,个人希望回到家能有种轻松惬意的视觉感受,可以卸下一身疲劳。同时,这套房子也是为了孩子以后上学可以有一个更好的选择,起码要保证其十年的居住期,这也是业主考虑的基本规划,致力打造这个美好实用的居住空间,是我们给业主的期许。
客厅










京公安网备11010502040911