167㎡四居新中式风格丹轩梓园
发布时间:
2019年03月08日
小区:丹轩梓园 面积:167㎡ 户型:四居 风格:新中式风格
设计说明
本案装修案例为四室两厅三卫一厨,属于改善型居住,一家三代,两个孩子,足够独立私密空间,下班回家,孩子的笑声,老人在厨房忙活的锅碗瓢盆声,一家人,其乐融融!人到中年累但幸福着!
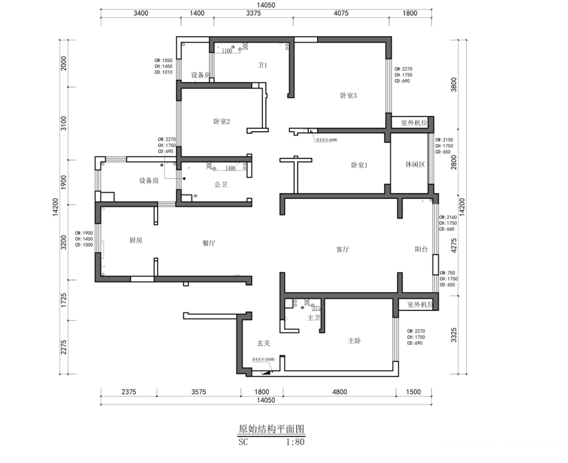
原始结构优缺点:南北通透,居于高层采光也很好,四室的房子,在储物上是有些欠缺,没有独立的衣帽间。
户型图

玄关

客厅


卫生间

卧室

餐厅





京公安网备11010502040911