136㎡四居新中式风格使馆一号苑
发布时间:
2019年01月19日
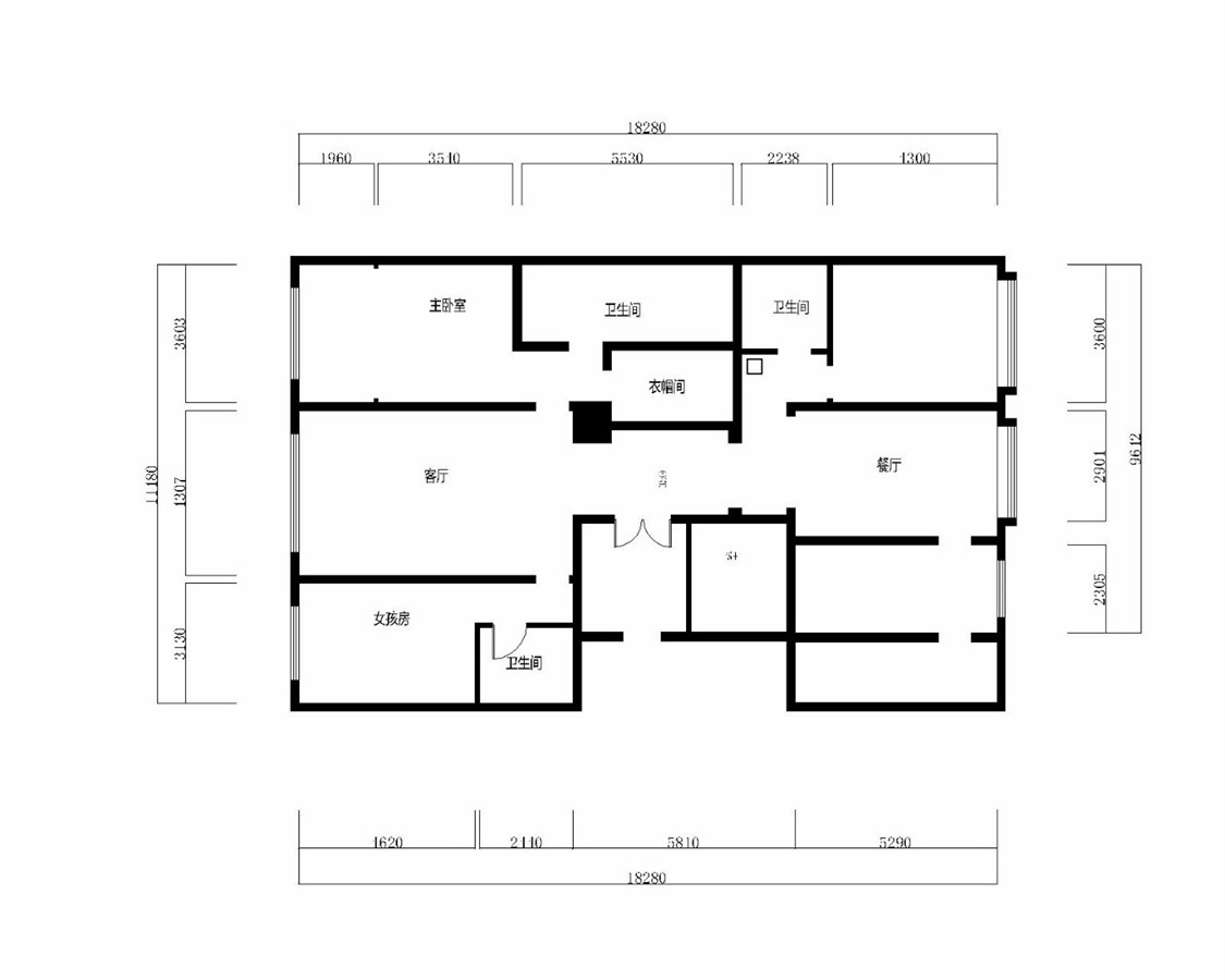
小区:使馆一号苑 面积:136㎡ 户型:四居 风格:新中式风格
设计说明
男主人:35岁,大学地理系讲师,性格成熟稳重、热爱生活,平时喜欢旅游。女主人:33岁,教高中的语文,性格温柔贤惠、待人真诚,平时喜欢打理家里。儿子:8岁,活泼好动,喜欢篮球。
本案的色彩提取了轻快明朗的明黄色作为主色调,取其特性在空间中铺展延伸,或是布艺色彩,或是家私饰品、地毯花艺在空间里起着至关重要的作用,并且时刻散发出一种高贵大方的气息,将古朴典雅的新中式引领到一个清雅含蓄的空间。
户型图

客厅




卧室


餐厅

玄关





京公安网备11010502040911