220㎡四居现代简约风格中港CCpark
发布时间:
2019年01月19日
小区:中港CCpark 面积:220㎡ 户型:四居 风格:现代简约风格
设计说明
此居室整体采用中性色调,稳重,大气,却又不失品位,有令人眼前一亮的感觉。客餐厅多采用木纹板块大小色块间的组合的方式与等块分割的顶面造型相互呼应,空间整体性强。
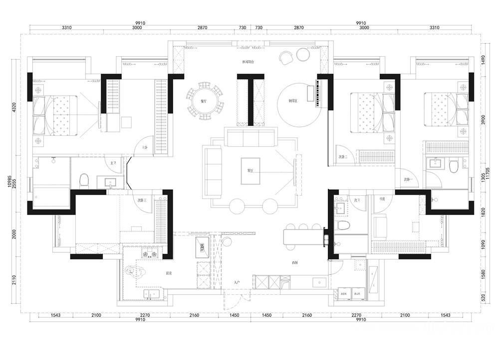
户型图

客厅



卧室

卫生间

此居室整体采用中性色调,稳重,大气,却又不失品位,有令人眼前一亮的感觉。客餐厅多采用木纹板块大小色块间的组合的方式与等块分割的顶面造型相互呼应,空间整体性强。





